Umbau und Erweiterung Haus JM
Maloja, Suisse
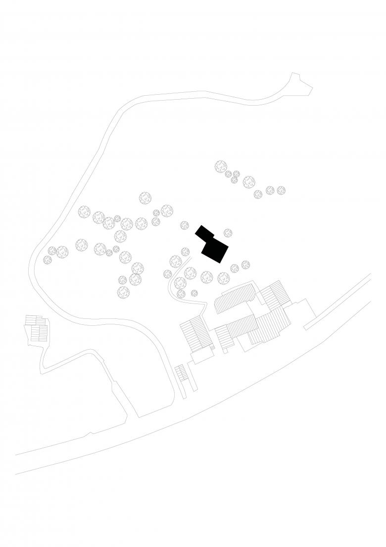
Das Projekt besteht aus der Restaurierung und Erweiterung eines Hauses, das sich in Capolago, Maloja, in einer Panoramalage im Wald befindet.
Bei dem ursprünglichen Gebäude aus dem Jahr 1965 handelt es sich um ein kleines Ferienhaus mit zwei oberirdischen Stockwerken und einem Keller. 1974 wurde es um einen Anbau im Nordwesten erweitert, der als Wohnzimmer gedacht war, aber in Wirklichkeit kaum oder eher als Lagerraum genutzt wurde.
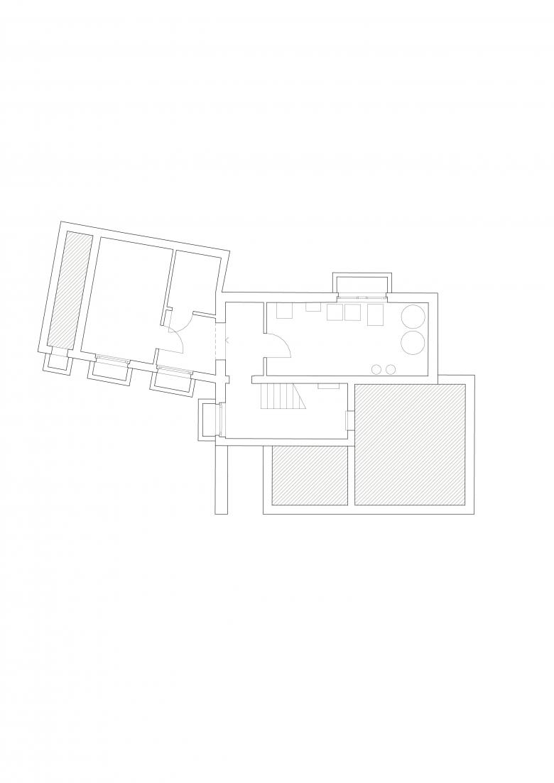
Die Renovierung war radikal und ermöglichte einen erheblichen Qualitätssprung gegenüber dem bestehenden Gebäude.
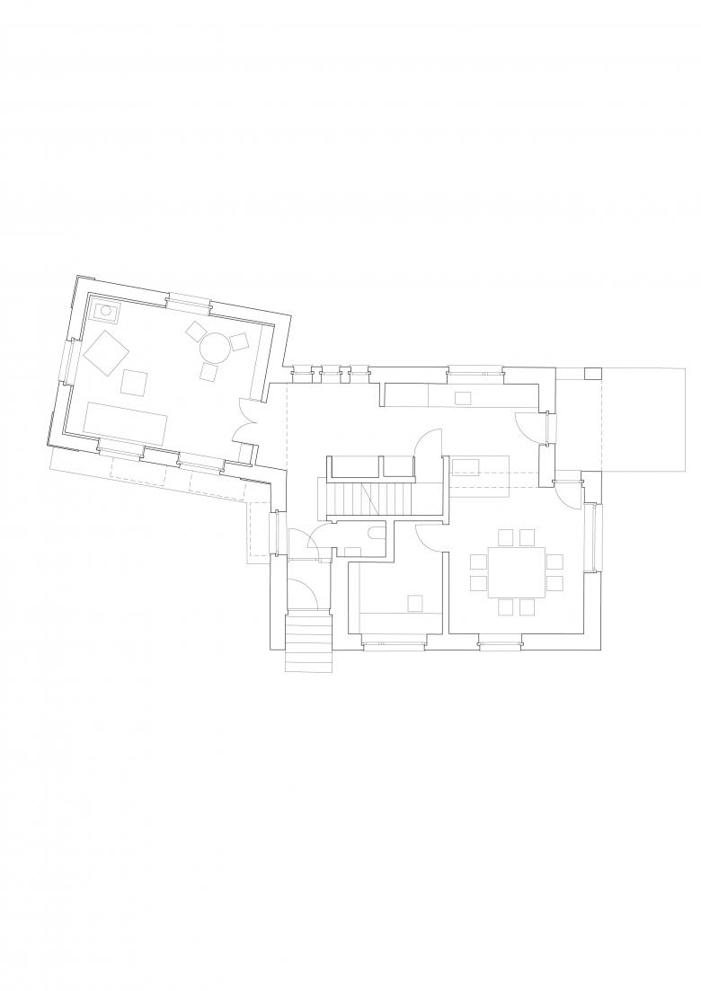
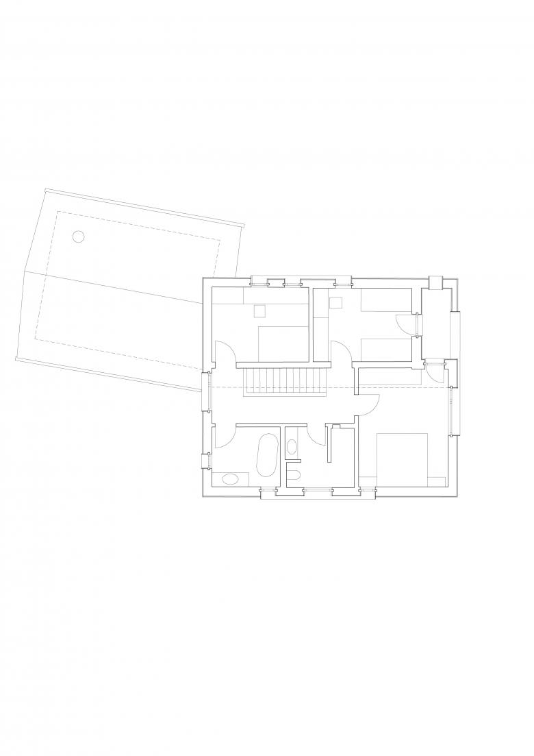
Das Ergebnis ist ein ganzjährig bewohnbares, isoliertes und beheiztes Haus mit einer neuen Aufteilung, die den Wohnraum im Erdgeschoss besser nutzt, und einer Erweiterung nach oben, um das ursprünglich niedrige und dunkle Obergeschoss voll auszunutzen.
Das Dachgeschoss wurde entfernt und 1 Meter höher wieder aufgebaut, wobei eine Ganzholzlösung gewählt wurde. Außen besteht die Verkleidung des ersten Stocks aus vertikalen Zirbenholzbrettern mit Schnitzereien, die die Engadiner Stube paraphrasieren.
- Architectes
- Ruinelli Associati AG
- Année
- 2024
- Statut du projet+
- Construit
Projets liés
Magazine
-
Bâtiment de la semaine
The Three-Body Problem: Trapped in a Wave Sandwich
Eduard Kögel, Scenic Architecture Office | 13.04.2026 -
-






























