PLOT 893
Beirut, Liban
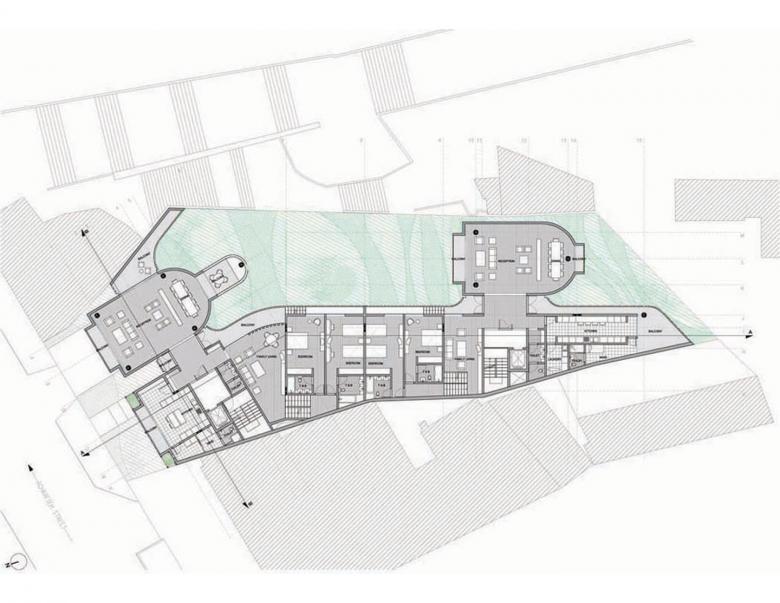
Plot # 893 is situated in a residential area of East Beirut, with a plot surface of 1,054 square meters and an allowable built-up area of approximately 4,100 square meters. The residential project runs parallel to Montée Barakat, an old public stairway linking Achrafieh Street to its adjacent southern neighborhood.
As part of a series of projects we have developed that attempt to move away from the often imposed typical developer’s typology consisting of deep floor slabs, this proposed scheme is one that is stretched along its depth, resulting in shallow and elongated plans embracing an inner garden.
With a relatively modest length of 14 meters running along the northern street-facing façade, the building is aligned flush with the western blind parti wall, stretching the plan along the 55-meter depth of the plot, thus rendering the slabs of the apartments shallow along the eastern-western axis allowing for generous natural light and maximizing the residences’ exposure to a rare feature in such a dense urban context: an internal 650-square-meter garden on the eastern side.
The scheme generates longitudinal balconies which wrap around the glazed periphery of the dwellings, out of which double-height reception areas protrude as organic pavilion-like structures overlooking the garden, further exposing them to the exterior, providing cross-ventilation and maximizing their natural light gain. The serpentine terraces that define the eastern edge of the plan allow for one to make their way from any room in the house to another solely from the exterior, giving rise to an alternative outdoor circuit allowing the building to integrate itself into its surrounding by embracing its garden and the void above it.
- Architectes
- Bernard Khoury / DW5
- Année
- 2010
- Statut du projet+
- Construit
Projets liés
Magazine
-
-
Bâtiment de la semaine
Within Old Walls, a Breath of Fresh Air
Reichel Schlaier Architekten | 18.05.2026 -
Periphery as Method: On Architecture’s 'Dispositional Intelligence'
Guiomar Martín | 15.05.2026













