PLOT 732
Beirut, Liban
Situated in a dense residential area of Achrafieh, an eastern district of Beirut, this project is the first of a series of commissions by a young developer, who ultimately became a recurring client. Plot # 732 was chosen as the outcome of this promoter’s former pursuit of sites deemed “residual”, considered “too small” to be developed. With a modest plot area of 209 m² and an allowable built-up area of 1573 square meters (gross), the project’s eastern façade runs along Chehade Street, perpendicular to Abdel Wahab El-Inglizi Street.
The proposed scheme is primarily driven by the particularity of the site – being its foregoing limited surface area bordering an especially narrow street of 7.5 meters in breadth – as well as the desire to take advantage of the region’s mild climate through the strive for generous natural light and cross-ventilation in each unit.
The sole advantage of the scale of the plot presents itself as a markedly low incidence of price of land on the cost of the project, evaluated against the neighbourhood’s cost of land.
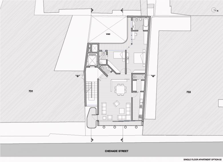
However, with site dimensions of approximately 10 by 20 meters, implying relatively small dwellings, in great part already consumed by the vertical circulation core; the expected and traditional standards and typologies associated with residential buildings simply could not be applied. Our intervention therefore takes a radical measure structurally, which consists of confining the structural elements solely to two completely load-bearing parti walls at the southern and northern side facades, as well as to the vertical circulation core; thus giving rise to unobstructed free plans at every level.
The circulation route at each floor begins at the elevator landing, facing a staircase which is open to the exterior, thus avoiding the blind core which could have arisen from the traditional developer's typology, compensating for the landing’s minimal size by exposing and naturally lighting what could have been a blind and interior space.
The site’s second aforementioned characteristic, being the narrow nature of Chehade Street coupled with the density of the neighbourhood, especially expressed by the substantially high building across the street, gives rise to two further challenges: a lack of daylight, as well as a privacy issue resulting from vis-à-vis instances.
Consequently, the street-facing eastern façade of the building is fully glazed, parti wall to parti wall and floor to ceiling, insuring maximum natural light, however simultaneously creating unwanted vis-à-vis occurrences. This fundamental contradiction thus brought about the installation of an elementary structure of interlocking wooden elements, along which clay pots of a unit price of $7 are suspended, thus creating a vegetal curtain as a result of the plants embedded in them. The overflow of foliage hence acts as a filter of light and wind, and this penetration of the elements and their impact on the interior spaces of the dwellings becomes a central aspect of the design process.
In order to further accentuate this effect, notably on the interior, the complete glazing of the principal eastern façade was introduced as gliding panels which, when completely open by sliding three panels flush with the fourth, transform the reception space into a balcony now in direct relation with the vegetal curtain, the light and wind its filters, as well as the shadows it creates. This space benefits from an additional 70-centimeter-wide platform running along the glazed edge, thus creating an outdoor extension to the reception when the sliding doors are open.This platform forms part of the 20% of allowable balcony surface area along with another less “inhabitable” lateral balcony looking out of the same eastern façade. Accessible by a concealed door at the southern façade, this secluded organically-shaped “fumoir” gains its name from the temporal nature of the small escapades it serves, such as the time taken to smoke a cigarette. In addition to these is the generous deck at the western façade, opening up the back of the building to a void, thus simultaneously separating it from its surroundings, as well as gaining natural light in such a dense urban context.
Unlike the traditional residential typology which tends to clearly draw a very tight limit between public domain and private building, this scheme’s structural approach results in a fairly atypical reading of the building in its surroundings. Lifted off the ground in order to provide parking spaces at street level as well as a pedestrian entrance, the slabs and walls of the building translate as a black frame in its most minimal expression encasing the glazing at the principal façade, seemingly floating above the ground floor and straddling the two parti walls. The pavement extends from the public sidewalk, right under this said frame without ever vertically coming into contact with it, while accentuating the intention of merging the public with the private.
By attempting to inscribe itself into the fabric of its environment through these understated yet intentional gestures, this project seeks to become a product of its context. It is aimed at presenting a subtle yet different way of inhabiting the city, a different way of dealing with the neighborhood; a particular relationship with the outside, with the fabric, with the elements.
- Architectes
- Bernard Khoury / DW5
- Année
- 2008
- Statut du projet+
- Construit
Projets liés
Magazine
-
-
-
Bâtiment de la semaine
Within Old Walls, a Breath of Fresh Air
Reichel Schlaier Architekten | 18.05.2026










