Einfamilienhaus Uster
Uster, Suisse
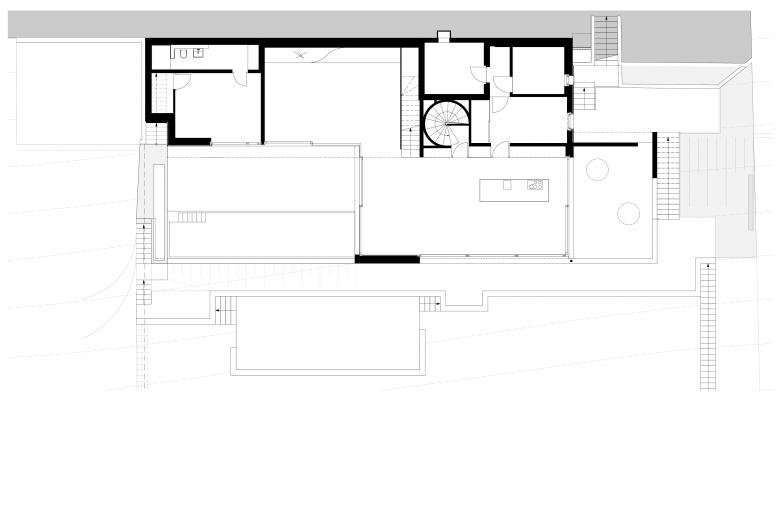
Auf den Fundamenten des alten Hauses entsteht ein neuer Baukörper, der durch seine Ausrichtung Bezug nimmt auf die Lage des Grundstücks mit seiner Aussicht auf Alpen und Greifensee. Als Bewohner des Altbaus konnte die Bauherrschaft die Qualitäten und Mängel des bisherigen Hauses genau aufzeigen. Durch das Verschieben des Zuganges zwischen Haus und Garage werden neue Ausblicke frei, die Erschliessung im DG wird dadurch grosszügiger und der Elternbereich privater. Die hangseitig vorhandenen Räumlichkeiten im Untergeschoss werden leicht vergrössert. Das Erdgeschoss gewinnt durch den grosszügigen Wohn-, Ess- und Kochbereich enorm an Qualität. Die räumliche Beziehung zwischen der Abendterrasse, dem Innenraum und dem Morgensitzplatz wertet die Wohnqualität enorm auf.
Auftraggeber:in
Privat
Architektur moos. giuliani. herrmann. architekten.
Nadine Koppa, Alexander Sperlich, Roger Moos, Vllaznim Ahmetaj, Tanja Groneberg, Nathalie Schümperlin
Bauleitung
moos. giuliani. herrmann. architekten.
Statik
ibeg bauengineering gmbh, Wetzikon
Bauphysik
Herrmann Partner AG, Andelfingen
Landschaft
ryffel + ryffel Landschaftsarchitekten, Uster
Fotografie
Beat Bühler, Zürich
Eckdaten
1 Wohneinheit, GF SIA 416: 545 m²
Bauzeit: 12 Monate
Bauvollendung: 2010
- Architectes
- moos. giuliani. herrmann. architekten.
- Année
- 2010
- Statut du projet+
- Construit






















