Gebäude der Sprach- und Kulturwissenschaften (SKW) der Goethe-Universität Frankfurt
Campus Westend, Rostocker Strasse 2, Frankfurt am Main, Saksa
Das neue „SKW“-Gebäude ist der nördliche Abschlussbaustein des von Ferdinand Heide gestalteten Masterplans für den Universitätscampus Westend in Frankfurt am Main. Den Campus prägt Hans Poelzigs 1931 fertiggestelltes, mit Travertin verkleidete Verwaltungsgebäude für die IG Farben – die klare Formsprache, eine weitgehend schmucklose Fassade und der „serielle Charakter“ der sechs Querbauten sind als „Anerkennung des industriellen Rationalismus schlechthin“ interpretiert worden.
Die Architektur an diesem Ort muss sich damit in dem Spannungsfeld zwischen Weiterbauen im Sinne eines homogenen Passepartouts des Campus mit einheitlicher Gestaltung und Kontinuität und der architektonischen Eigenständigkeit definieren und bewähren:
Das Projekt nimmt die Raumkante des Universitätscampus zur Stadt an der Rostocker Straße und Hansastraße auf und weicht am Platz an der Hansaallee auf die Bauflucht der nördlichen Campusbebauung zurück. Die Verbindung zwischen Campusgelände und nördlicher Miguelallee wird mit einem baumüberstandenen Eingangsplatz definiert, der von Mensa und frequentierten Foyerbereichen öffentlich begleitet wird.
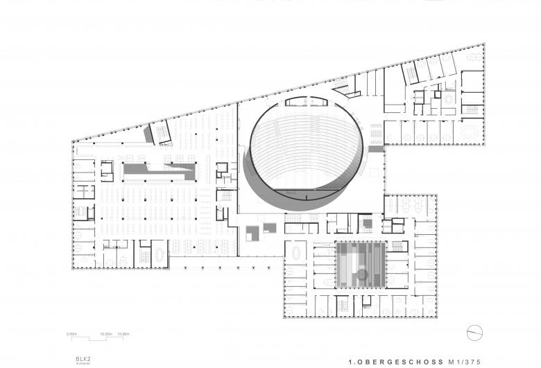
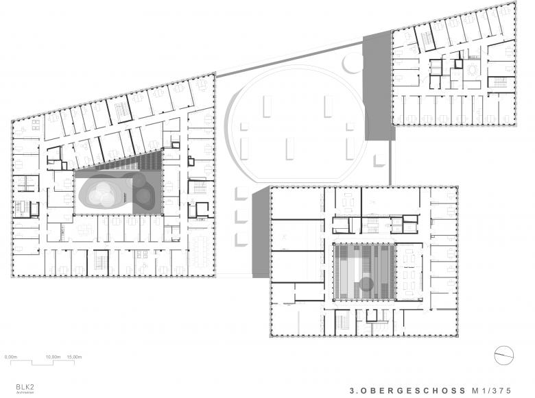
Das Ensemble aus drei kubischen Baukörpern, die unterschiedliche Programme aufnehmen und dabei ablesbar machen, wird durch einbeschriebene Innenhöfe strukturiert. Es entsteht damit die Typologie einer kleinen Stadt - als eigener Organismus in sympathischem Maßstab.
Das verbindende Erdgeschoss-Plateau mit dem eingestelltem ellipsoiden Hörsaal für 700 Personen verknüpft selbsterklärlich die horizontalen Raumfolgen in die Geschosserschließungen und entwickelt dabei eine hohe Orientierbarkeit und Identität.
Die Kunstpädagogik funktioniert dabei als eigener Baustein im Ensemble der Gebäudestruktur und ist zugleich mit ihren Werkstätten und Ateliers in die Erschließung eingebunden.
Fachbereichsbibliothek und Mensa können außerhalb der Öffnungszeiten erschlossen werden – was zur Belebung des Campus beitragen wird.
Der Neubau beherbergt künftig insbesondere die Fachbereiche der Sprach- und Kulturwissenschaften, aber auch etliche zentrale Serviceeinrichtungen der Goethe-Universität sowie des Studierendenwerks Frankfurt. Beheimatet sind dort künftig u.a. die Fächer Kunstgeschichte, Kunstpägogik, Musikwissenschaften, außereuropäische Sprachen, Empirische Sprachwissenschaften sowie das Dekanat des Fachbereichs und die gemeinsame Bereichsbibliothek. In den Untergeschossen ist neben Lagerflächen, Archiven und der Gebäudetechnik eine zweigeschossige öffentliche Tiefgarage für den Campusbetrieb untergebracht.
In der Materialisierung setzt sich der Entwurf eigenständig mit dem vorgefundenen Kontext des Campus auseinander und dekliniert das Prinzip der Lochfassade in eine Schichtigkeit und Teiligkeit. Die Fassade wird in ihrer Tiefe durch zwei scheinbar verschiebliche Grids aus farblich unterschiedlich nuancierten Natursteinverkleidungen strukturiert. Dabei werden die Leibungen der Öffnungen des hinteren Grids mit champagnerfarbigen Aluminumverkleidungen gerahmt, so dass sich für den Betrachter je nach Blickwinkel zur Fassade ein ambivalentes Spiel aus Metallfassade und Natursteinfassade ergibt. Die Leibungsverkleidungen verdecken die Materialstärke des Steins, damit wird bewusst auf die Andeutung einer scheinbaren Solidität monolithischen Natursteinmauerwerks verzichtet- der Naturstein wird als Haut für die Nutzung interpretiert. Gestalterisch nehmen BLK2 Architekten damit Bezug auf Hans Poelzigs IG Farben Bau ohne diesen zu zitieren: Dieser Bau der Neuen Sachlichkeit war bei Errichtung 1931 Deutschlands größter Stahlskelettbau und wurde mit Cannstatter Travertin verkleidet. Langgestreckte Fensterbänder widersprachen auch hier dem damals vorherrschendem System von Tragen und Lasten monolithischer Natursteinfassaden.
Gesamthaft fügt sich das Projekt damit präzise in die städtebauliche und typologische Struktur und Materialität des Campus ein und bildet so einen attraktiven Schlussstein des Campus.
Im Inneren entstehen spannungsvolle, dabei maßstäbliche Raumfolgen mit guter Orientierbarkeit und einer angemessenen Abstufung von Öffentlichkeiten, die sich zu einem universitären Ort verdichten, der zum Forschen und Lernen einlädt.
- arkkitehdit
- BLK2 Architekten
- Year
- 2022
- Project Status
- Built
Related Projects
Magazine
-
Building of the Week
A Theatre With 'Ripples on Its Surface'
Blight Rayner Architecture in partnership with Snøhetta | 20.04.2026 -






































