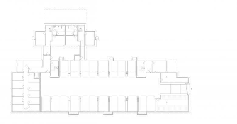
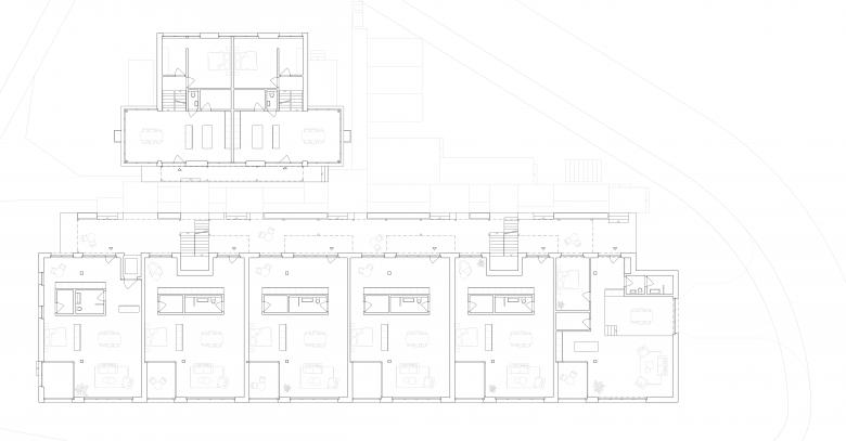
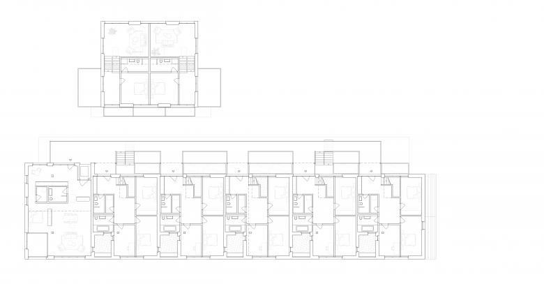
Wohnüberbauung Schweizersbild
Wohnvielfalt im Gewerbequartier
- Arquitectos
- Neustadt Architekten GmbH
- Año
- 2018
- Estado del proyecto
- Construido
- Architektur und Projektierung
- Neustadt Architekten
- Fotografie
- Björn Siegrist
Proyectos relacionados
Magazine
-
-
-
La Construcción de la semana
Within Old Walls, a Breath of Fresh Air
Reichel Schlaier Architekten | 18.05.2026















