Villa am Schlachtensee

Foto © David Hiepler und Fritz Brunier

Für eine vierköpfige Familie haben wir die Vorstadt-Villa aus dem Jahr 1890 umfassend saniert und umgebaut. Die Familie wünschte sich einerseits den Charm der Altberliner Villa, mit ihren Holzböden, hohen Räumen und Türen, andererseits bestand ebenso der Wunsch nach einem modernen, lichten Raum für das gemeinsame Kochen und Essen. Der baufällige, in späteren Jahren hinzugefügte Anbau des Hauses wurde abgetragen und durch eine moderne Erweiterung ersetzt, welche in der Gartenetage die grosse Wohnküche und in der darüber liegenden Etage das Eltenschlafzimmer beherbergt. Alle Etagen im Haus wurden modernisiert und die Grundrisse teilweise umgestaltet. Der alte Dachstuhl, welcher mit giftigem Holzschutzmittel behandelt war, wurde abgetragen und durch einen neuen ersetzt. Das Dach wurde dabei etwas angehoben, um auch im Dachgeschoß Aufenthaltsqualität zu erhalten.

Foto © David Hiepler und Fritz Brunier
Foto © David Hiepler und Fritz Brunier
Foto © David Hiepler und Fritz Brunier
Foto © David Hiepler und Fritz Brunier
Foto © David Hiepler und Fritz Brunier
Foto © David Hiepler und Fritz Brunier
Foto © David Hiepler und Fritz Brunier
Foto © David Hiepler und Fritz Brunier
Foto © David Hiepler und Fritz Brunier
Foto © David Hiepler und Fritz Brunier
Foto © David Hiepler und Fritz Brunier
Foto © David Hiepler und Fritz Brunier
Foto © David Hiepler und Fritz Brunier
Foto © David Hiepler und Fritz Brunier
Foto © David Hiepler und Fritz Brunier
Foto © David Hiepler und Fritz Brunier
Foto © David Hiepler und Fritz Brunier
Foto © David Hiepler und Fritz Brunier
Foto © David Hiepler und Fritz Brunier
Foto © David Hiepler und Fritz Brunier
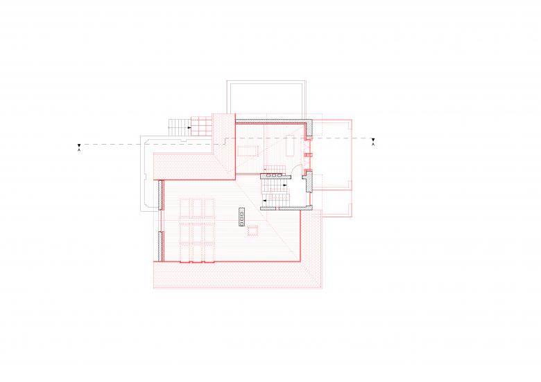
Erdgeschoss
Dibujo © CAMA A
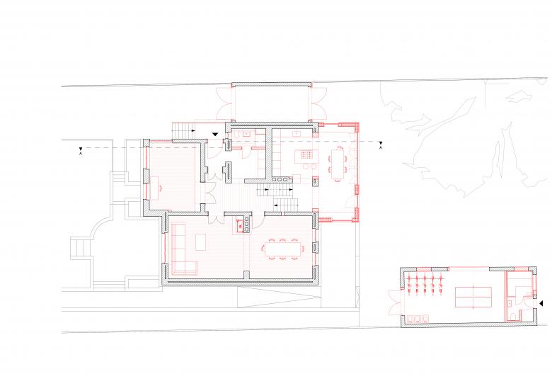
Obergeschoss
Dibujo © CAMA A
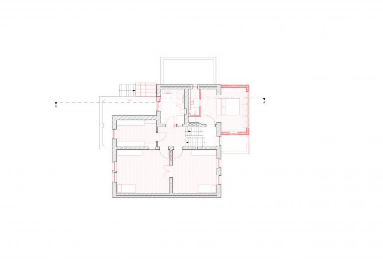
Dachgeschoss
Dibujo © CAMA A
Straßenansicht
Dibujo © CAMA A
Gartenansicht
Dibujo © CAMA A
Seitenansicht
Dibujo © CAMA A
Seitenansicht
Dibujo © CAMA A
Schnitt
Dibujo © CAMA A
Arquitectos
CAMA A
Año
2020
Project Status
Construido

Proyectos relacionados 

  • Moos
    playze
  • Reiters Reserve Premium Suiten
    BEHF Architects
  • Erweiterung und Instandsetzung Hallenbad Altstetten
    MIYO Visualisierung
  • Neubau von fünf Einfamilienhäusern
    Bäumlin+John AG
  • The Forge in der 105 Sumner Street in London
    Kiefer Klimatechnik GmbH

Magazine 

Otros proyectos de CAMA A 

Haus am Ziestsee
Bindow, Alemania
Haus S
Berlin, Alemania
Haus Spießergasse
Berlin, Alemania
F_36
Berlin, Alemania
Haus_S
Bad Wörishofen, Alemania