Stella
Nagpur, India
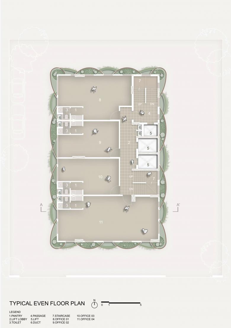
Stella is a compact office building located in Nagpur, Maharashtra, India. Within a plot of 836.07 sq.m., the project accommodates 5,575 sq.m. of office space across 14 levels, with four offices on each floor. The restricted plot size and statutory open space requirements resulted in a vertical configuration, optimizing the usable area while maintaining natural light and ventilation throughout.
Nagpur, among India’s hottest cities, records summer temperatures of up to 48°C. Responding to this extreme climate, the building’s façade is conceived as a layered, climate-responsive skin. Semicircular open decks and planters sheathed with aluminum louvers alternate along the entire perimeter, both horizontally and vertically. This dynamic envelope mitigates direct solar heat gain while introducing greenery around the building, creating shaded, cooler microclimates for the interior spaces.
Green buffers wrap the façade, enhancing thermal performance and visual comfort. The service and circulation core is positioned on the eastern edge, allowing the north, west, and south sides to open up for naturally lit office spaces. Larger offices occupy the front and rear, benefitting from daylight, cross ventilation, and outdoor views that enhance occupant comfort.
Rejecting the fully glazed office typology unsuitable for tropical climates, Stella embodies a contextual and energy-efficient architectural response. The design minimizes heat gain, reduces operational energy consumption, and provides sheltered, well-illuminated workspaces with indirect sunlight. Conceived as a direct response to its setting, Stella integrates passive strategies, greenery, and modern expression to create a sustainable workplace rooted in its climatic context.
- Architects
- Sanjay Puri Architects
- Year
- 2026
- Project Status
- Built
- Client
- Prestige Builders
- Team
- Sanjay Puri (Lead Architect), Ruchika Gupta, Tanushree Jayakar, Sheetal Tharwal, Bahar Patil, Sumit Khandelwal
- Structural Consultant
- Patankar Consultants
- Façade Fabricators
- Aditya Associates
- Construction Company
- Prestige Builders
Related Projects
Magazine
-
Building of the Week
Within Old Walls, a Breath of Fresh Air
Reichel Schlaier Architekten | 18.05.2026 -
Periphery as Method: On Architecture’s 'Dispositional Intelligence'
Guiomar Martín | 15.05.2026 -
-





















