Scuola dell‘infanzia San Giorgio
Morbio Inferiore, Switzerland
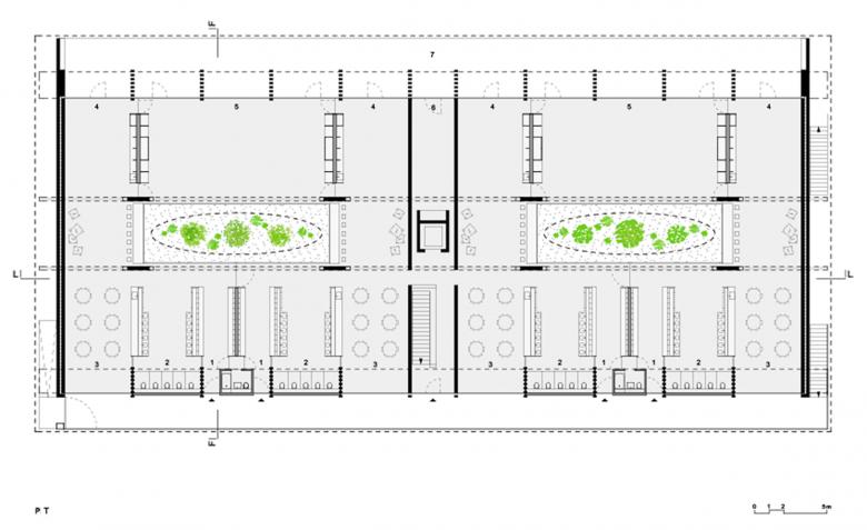
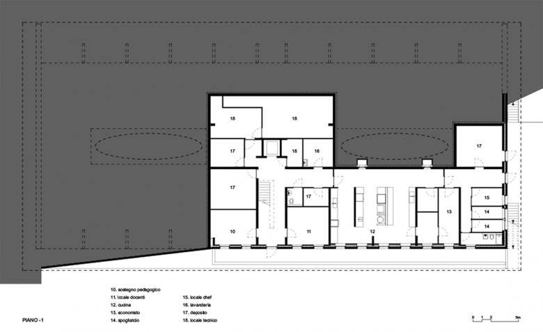
L’edificio definisce con un grande tetto, una lastra orizzontale, il limite sud di un terrapieno rettangolare, posizionandosi tra la scuola elementare, un’area boschiva con biotopo e la scuola media, in modo di mantenere libera la parte nord, quale spazio di riferimento. Le 4 sezioni sono disposte su un piano unico, suddivise in due comparti di due sezioni. Al centro dei comparti si trova un patio vetrato: un’apertura ellittica verso il cielo, un giardino, quale elemento di divisorio e di riferimento, attorno al quale si svolgono le varie attività. Gli spazi di supporto sono collocati al piano inferiore. Il sistema costruttivo è composto da un basamento in cemento armato e da una grande copertura in legno, composta da una serie di travetti, appoggiati sui 4 assi strutturali longitudinali. Essi sono composti da due muri arcati in cemento armato centrali e travi composte in legno laterali che formano delle nicchie verso i ballatoi.
- Architects
- Könz architetto
- Year
- 2018
- Project Status
- Built
Related Projects
Magazine
-
-
Building of the Week
Within Old Walls, a Breath of Fresh Air
Reichel Schlaier Architekten | 18.05.2026 -
Periphery as Method: On Architecture’s 'Dispositional Intelligence'
Guiomar Martín | 15.05.2026






















