NO.5 Appartment interior design
番禺路, Shanghai, China
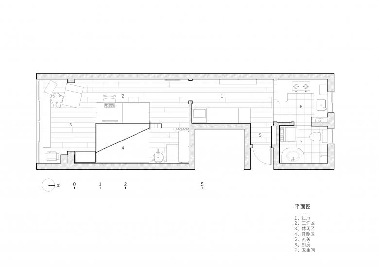
We moved with cats from Beijing to an appartment in Shanghai built in the 1980s. The living space shrank from 60 square meters to just 40, yet We hope that we could design the interior based on the lifestyle, that we had grown in Beijing. Together with the cats, we began adapting to this new and smaller home.
The layout of the appartmen is a long, narrow strip with the entrance in the middle. The entryway and central dining area are noticeably dim, in stark contrast to the bright rooms at either end. This gives the dining area a rather passive spatial quality. The key challenges were how to reorganize the spatial relationships to improve the first impression upon entering, and how to balance and define the various functional zones of daily life—so that the space could be both simple and rich with interest.
- Architects
- beyondtime architects
- Year
- 2025
- Project Status
- Built
Related Projects
Magazine
-
-
-
Building of the Week
Within Old Walls, a Breath of Fresh Air
Reichel Schlaier Architekten | 18.05.2026























