Erweiterung Sekundarschulhaus Imbach Il
Steinlerstrasse 9, Wängi, Switzerland
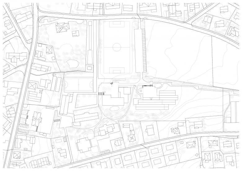
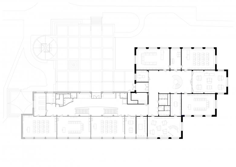
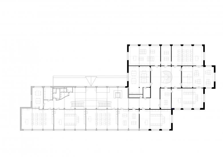
Mit der neu zu planenden Schulerweiterung in Wängi sollen einerseits betriebliche Defizite behoben werden, andererseits soll eine Entflechtung der verschiedenen Altersstufen herbeigeführt werden. Die Intervention beschränkt sich auf zwei Eingriffe auf dem Schulareal. Dadurch wird eine neue, klare und altersgerechte Zuordnung erreicht. Mit der Erweiterung des bestehenden Schulhaus Imbach II können sämtliche Schulräume der Oberstufe in einem Gebäude untergebracht werden. Der bestehende, terrassierte Pausenhof wird mit dem zweigeschossigen Erweiterungsbau räumlich klar gefasst. Die Erweiterung ordnet sich unter dem Thema «Weiterbauen der vorhandenen Bausubstanz» ins Gesamtbild der Schulanlage ein. Im Innern wird die räumlich strukturelle Logik des Bestandes fortgeschrieben. Aufgrund der räumlichen und betrieblichen Defizite schlagen wir einen Ersatzneubau am Standort des ehemaligen Wartheimgebäudes vor. Der dreigeschossige Neubau markiert neu den Arealeingang von der Steinlerstrasse her und bildet damit das «neue Gesicht» nach aussen hin. In der räumlichen Wahrnehmung und seiner Präsenz liest sich der Neubau als Pendant zum bestehenden markanten Dorfschulhaus. Die allseitige Ausbildung des Gebäudekörpers mit den Einschnürungen und Rückstaffelungen trägt zu einer adäquaten Adressbildung und einer Einordnung in den Kontext bei. Der Neubau wird so in die abfallende Topographie gesetzt, dass zwei Zugangsniveaus entstehen. Ein unteres Niveau dient dem Zugang zur Tagesbetreuung. Ein oberes Niveau erschliesst die beiden Kindergarteneinheiten direkt ebenerdig und schliesst auf gleicher Höhe wie der bestehende Kindergarten Steinler an.
- Architects
- SOPPELSA ARCHITEKTEN
- Year
- 2023
- Project Status
- Built
- Client
- Volksschulgemeinde Wängi
Related Projects
Magazine
-
-
Building of the Week
The Three-Body Problem: Trapped in a Wave Sandwich
Eduard Kögel, Scenic Architecture Office | 13.04.2026 -




















