Holz-Hybrid-Hochhaus CARL
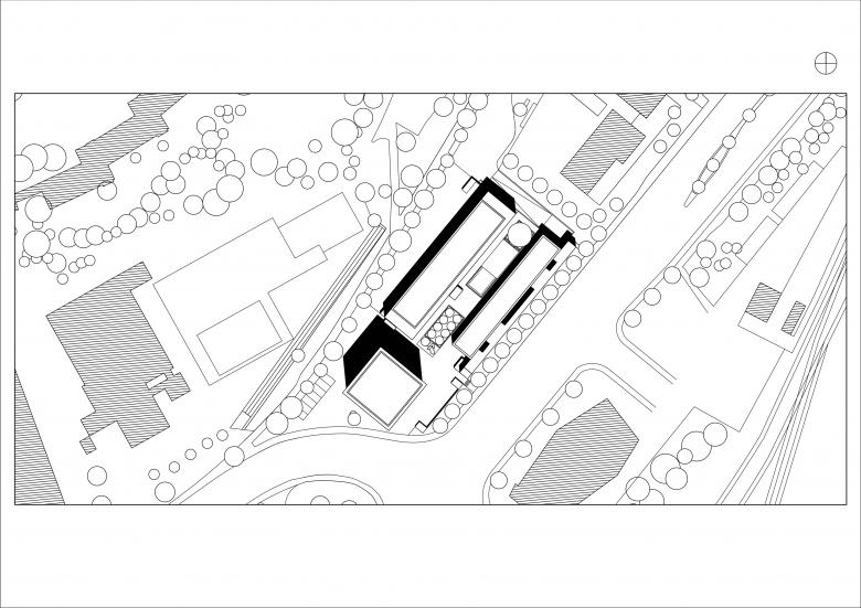
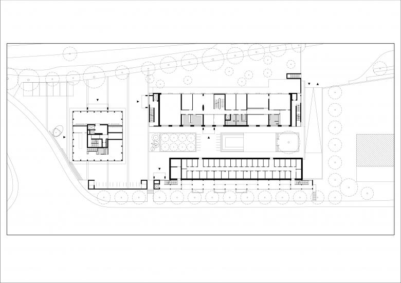
Das Gebäudeensemble steht im Westen Pforzheims und markiert dort den Stadteingang. Es besteht aus dem Wohnhochhaus CARL sowie zwei sich parallel gegenüberstehen vier- bzw. sechsgeschossigen Wohnhäusern. Das für eine Baugenossenschaft entwickelte Projekt beherbergt 73 Mietwohnungen, eine sechsgruppige Kindertagesstätte und eine Bäckerei.
Das Hochhaus mit 14 Geschossen ist aktuell das höchste in Süddeutschland und wurde in Holz-Hybrid-Bauweise errichtet. Die Vollholzfassade mit französischen Fenstern wurde durch die brandschutztechnische Besonderheit einer umlaufenden Krempe ermöglicht. Das Gebäude kommt ohne Sprinkler aus und hat eine natürliche Belüftung. Dieser Low-Tech-Standard hat nicht nur die Baukosten verringert, sondern garantiert Mietnebenkosten weit unter dem Durchschnitt.
Auf Grund der viel befahrenen Straße wurde die straßenbegleitende Bebauung als Laubenganghaus entworfen. Die Ausführung des Laubengangs als ebenso robuste wie feine Struktur aus Betonfertigteilen ist eine bewusste Reminiszenz an den „poetischen Rationalismus“. Der geschützte Raum zwischen den Baukörpern fungiert als innerstädtische Oase, von deren Mitte das Gebäudeensemble erschlossen wird.
Der Entwurf versucht beispielhaft auf zwei zentrale Herausforderungen unserer Zeit zu reagieren: Den steigenden Bedarf an innerstädtischem Wohnraum und dessen Verflechtung mit Infrastruktur-Einrichtungen sowie eine Architektur, bei der sorgfältige Gestaltung und Nachhaltigkeit im Einklang sind.
- Year
- 2025
- Project Status
- Built
- Bauherr
- Baugenossenschaft Arlinger eG
- Architektur
- Peter W. Schmidt + Assoziierte
- Tragwerksplanung Ausführung
- B+G Ingenieure Bollinger und Grohmann GmbH
- Tragwerksplanung Entwurf
- merz kley partner GmbH
- Brandschutz
- Dehne, Kruse Brandschutzingenieure GmbH&Co.KG
- TGA-Planung/Bauphysik
- EGS-plan Ingenieurgesellschaft für Energie-, Gebäude- und Solartechnik mbH
- Generalunternehmer
- Ed. Züblin AG, Direktion Karlsruhe











