Art Academy Heist-op-den-Berg
The Arts Academy of Heist sits at its current spot since 1897 and has been renovated but once. At the foot of the hill (= den berg), it is the only anomaly in Heist’s main street, oozing the cultural optimism of the sixties. Gutsy as the architecture may be, its blind front and narrow income make the building seem unapproachable, defensive and distant – actual interaction with the surrounding community is virtually non-existent.
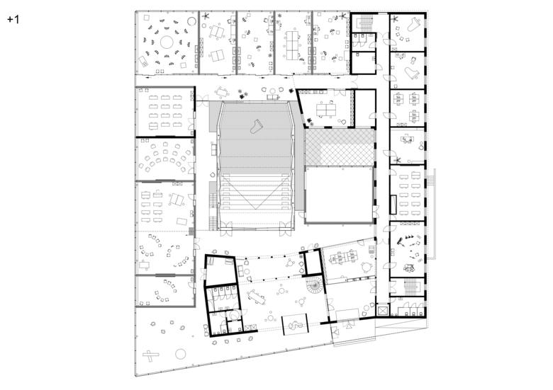
The original renovation plans reveal how the as-built is apparently incomplete: certain wings remain unbuilt, leaving a somewhat amputated-looking building from the outside. Inside however, the open and tactile sub-reality of the creative community reveals itself: for lack of a core communal space where the different art forms can meet, the corridors are packed with supplies, art pieces, instruments and installation tools.
Over the years, the two art communities cohabitating this tight corset (music, word and dance (MWD) being one, visual and graphic arts (VGA) the other) have become (not just literally) attached to each other, yet are both in urgent need of an expansion.
We wish to complete the unfinished, by filling up the void and thus, maximizing both internal and external contact surface. A new two-storey pedestal reacts to the topographical height difference and creates a horizontal academic “landscape”. MWD is thus acoustically buffered in the lower levels, with a minimum in height shifts, whilst VGA luxuriates in the light and vistas of the upper levels. The opportunities to meet are plentiful, as we firmly believe in the creative energy of human synergy.
- Year
- 2016
- Project Status
- Design
















