Taj Rishikesh Resort & Spa
The Indian Himalayas, a steep mountain landscape through which the sacred Ganges River meanders, is a nature that supersedes all human construction. For the development of the hotel complex Taj Rishikesh, it was this modesty in face of the grandiosity of the place that guided our approach.
Location: Rishikesh, India
Developer and Contractor: Darrameks Hotels & Developers Pvt. Ltd
Architect: yh2
- Design Team: Marie-Claude Hamelin, Loukas Yiacouvakis, François Bélanger, Marianne Vézina
Interior Designer: Eco-id architects
Landscape Architect: Burega Farnell
Lighting Consultant: GA Design
Structural Engineer: S.V. Damle
Building Area: 150,000 sf
The project was developed following a trip to the Indian Himalayas, where we studied the traditional vernacular architecture developed over millennia. This architecture evolved in response to the rugged mountain topography and the locally available materials, and this established the foundation of the project.
The resort, located 250 km north-east of New Delhi, incorporates the main hotel block and a series of villas on a vast and steep site overlooking the Ganges River. The site layout is inspired by traditional Himalayan villages, anchored around a Darbargadh, the traditional residence of local rajas or lords.
The Darbargadhs are used as a combination fortress-palace-temple, and offer at their heart a walled courtyard that ensures the protection of the villagers in times of war, and serves as a gathering place for community life in harmonious times.
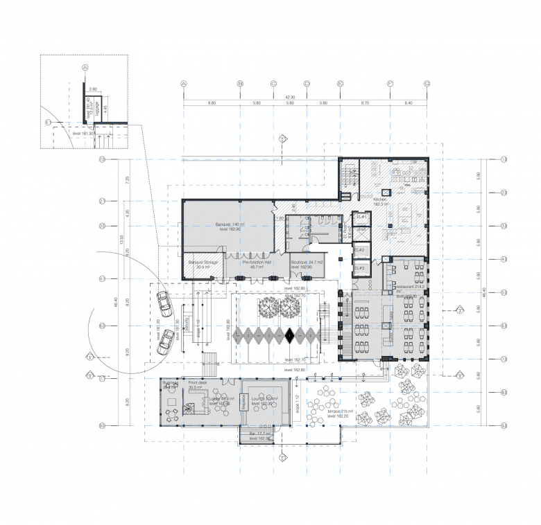
Created in the image of a traditional Darbargadh, the main block of the hotel overlooks the valley and provides a central location for gathering all the main services of the resort: the reception, restaurant, bar, boutique, library, and more.
The villas, as in a traditional Himalayan village, are laid out as a series of pavilions built on a succession of stepped terraces kept in place by massive stone retaining walls. This stratification of the site in successive levels offers each villa a private view of the mountain panorama and the majority with framed views of the Ganges River.
The architecture of the project takes advantage of the materials found locally: river stones for the retaining walls, slate for the roofs and flooring, and large wooden frames for the joinery. Traditional Himalayan construction techniques intermix stone walls with vast cantilevered cedar beams. This traditional building style called Kath-Kuni has been reinterpreted here with modern materials, with steel replacing the cedar beams that are now banned from exploitation in the Himalayas.
A long sinuous central pathway unites the property, winding through the different plateaus and leading to the various buildings of the resort complex. From the national highway at the top of the site, this long ribbon gently unfolds, connecting the main hotel block on the top plateau to the villas on the intermediate terraces. The path then travels further down to the yoga and spa pavilions at a lower plateau, only to end its journey at the swimming pool and restaurants that directly overlook the beach on the banks of the Ganges. This serpentine line of light-colored gravel winds elegantly through the site, just as the Ganges meanders through the Indian Himalayas.
Related articles
-
Center for Inclusive Growth & Competitiveness for TAPMI
The Purple Ink Studio | 27.10.2025 -
-
-
-
















