K XXXV
A multifunctional building has risen at the corner of the Komunardů and Přístavní streets in Prague, providing the missing piece for one of the typical regular Holešovice blocks. It is replacing two five-story apartment blocks that had to be taken down after the floods of 2002 compromised their structural stability.
Location: Prague, Czech Republic
Investors: Sebre, a.s.; Property Solutions s.r.o.
Architect: Stanislav Fiala / FIALA+NEMEC s.r.o.
Cooperation: Jiří Václavů, Petr Jehlík, Jiří Neumann
General Supplier: Hinton, a.s.
Other Suppliers:
- Tunnel s.r.o.
- Cabletech, s.r.o.
- Pasířství Josef Ryšlavý
- Kučera Miroslav a syn Umělecké kovářství a restaurátorství
- Spyron s.r.o.,
- M&T kliky
The task was to design a modern multi-purpose building that would universally meet all current expectations following from contemporary lifestyle and work practices, while confidently yet respectfully working with the historical and modern aspects of Holešovice.
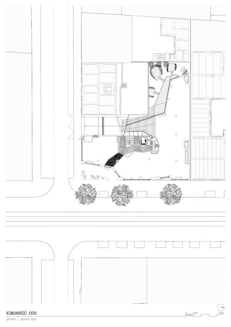
The height of the building matches the traditional structure of the surrounding apartment blocks. The corner mass protrudes two floors above the natural ledge, creating an archetypal corner tower. At the same time, this frees the space below in a way which creates an entry area dedicated to expanding the public street. The project design includes the addition of a clock to the tower, a classical urban element.
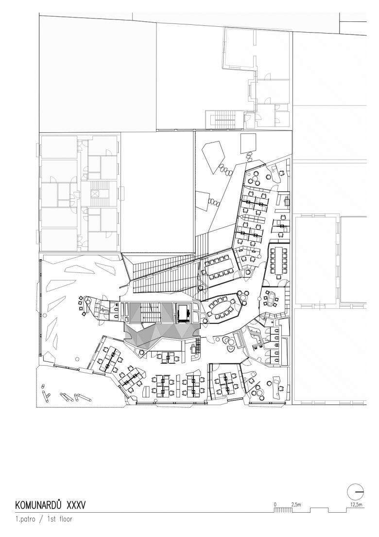
We strove to offer this main Holešovice avenue a two-story commercial parterre, as the genes of the building naturally reflected the connection to our older, successful project of revitalization of the Holport factory on the opposite side of the street. The time-tested operation of two commercial parterres gave us hope that similarly successful energies should also meet in our new building. Both floors are connected by a dominant staircase that goes through the glass façade all the way to the courtyard garden, creating a continuation of the public-oriented exhibition area.
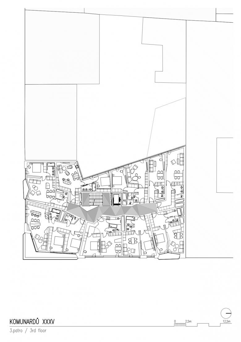
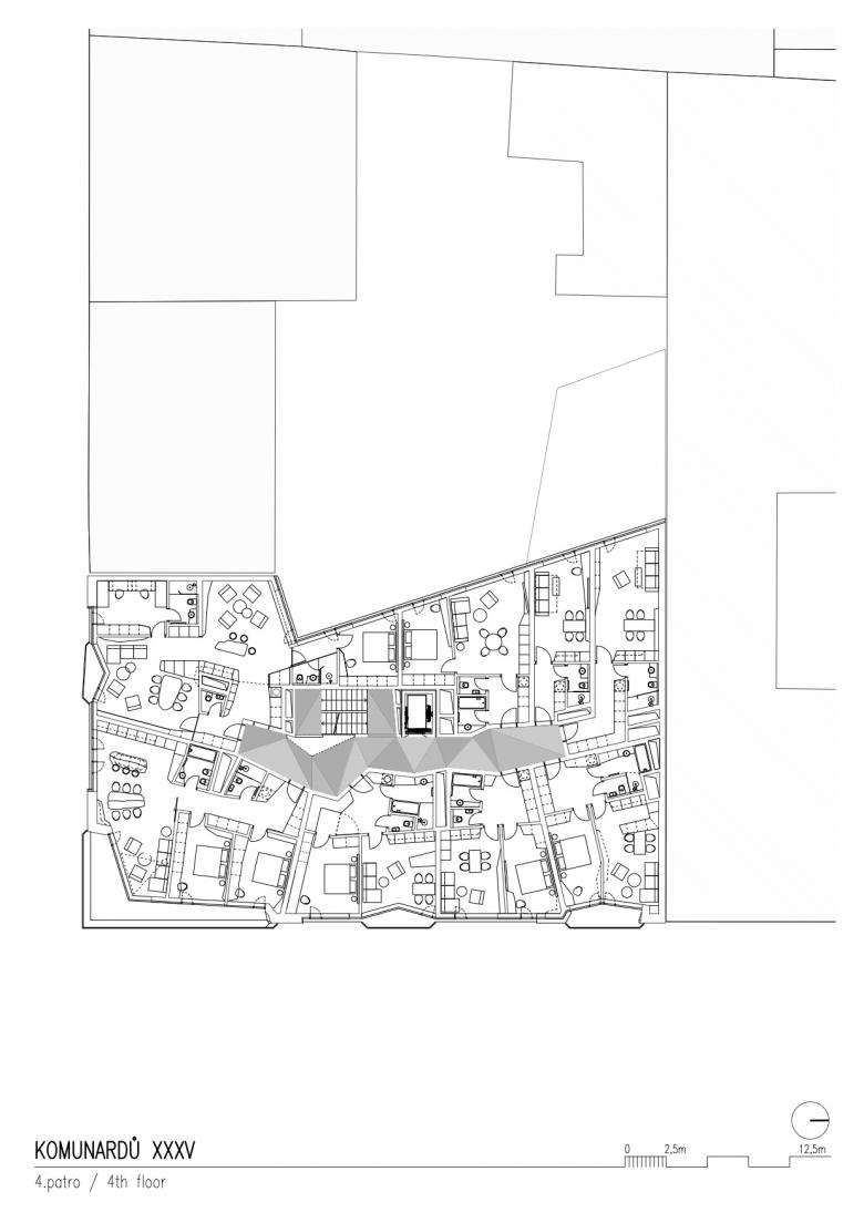
Starting from the third floor, the building is designed as residential. With regards to its location on a busy city street and to the character of one of the most dynamic districts of Prague, it contains mostly smaller apartments for young people. However, we tried to create options to merge smaller apartments to also allow for a more universal development of the building. On the highest, seventh floor there are four larger attractive apartments with spatial roof terraces that give them an exclusive flavor. The building also includes three underground floors with a generous number of parking spaces.
Artistically the building works with the industrial heritage of Holešovice, with the motivation to enrich it with luxurious greenery, which forms a dominant part of the whole concept, not only on terraces and balconies. Years in the future, climbing plants will cover the corner steel columns and the main stabilization concrete pillars that form the fundamental and characteristic look of the street front. This maintained and centrally watered greenery should climb up to higher levels and cover most of the visible concrete.






















