Hamonic + Masson & Associés
Golden Cube
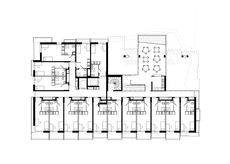
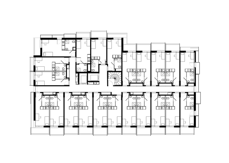
The guiding principles of these student halls of residence were standardization, self-regulation and a maximization of internal space.
This project, with its 156 rooms in an 8-story building taking up almost the entire plot, is no exception to this rule. There is nonetheless a secret garden, as the project coordinators, Loci Anima, were keen to reintroduce some biodiversity onto the island.
Every at has an outdoor area. A 1.5-meter recess allowed us to include loggias along almost the entire façade. The building’s outline is blurred by the use of filters, water effects and openings in the perforated sheets of steel. It is also dotted with birdhouses. The occupants cannot interfere with them and they require no maintenance.
PROJECT DETAILS
Address
ZAC Seguin – lot A4 Est
Boulogne-Billancourt, France
Program
156 student dwellings + parking
Developer
Nexity
Architect
Hamonic + Masson & Associés
Co-ordinating architect
Loci Anima
Engineering consultant
Aretec
Land surveyors
Legrand
General contractors
Bouygues Bâtiment
Gross floor area
3,200 sm
Cost
4.5 M € HT
Completion
2014
Photographer
Sergio Grazia












