Grimshaw
Duke University’s West Campus Union
Grimshaw is pleased to announce the completed renovation and expansion of Duke University’s West Campus Union in Durham, North Carolina. Situated on Abele Quad, the new student union re-establishes itself as the centerpiece for student life and the communal heart of Duke’s historic campus.
Fostering social interaction, inspiring healthful lifestyles and delivering state-of-the-art culinary excellence, the building brings the Duke community together in an exciting environment that unites the University’s storied history with an active, communal and contemporary experience.
First opened in 1931, the West Campus Union was designed by the office of Horace Trumbauer as a social center for the emerging University. The union is part of Frederick Law Olmstead’s master plan for the school and is situated on the quad that now bears the name of the original building’s lead architect, Julian Abele, a prominent African-American designer in Trumbauer’s office.
As part of the reconstruction, the nearly hundred-year-old structure has seen its legacy spaces restored to their original architectural significance while the central core of the building has been replaced and reimagined. Trumbauer’s original structure featured an exterior façade constructed out of locally quarried Duke Stone, while the ornate window tracery, gargoyles, and other decorative elements were carefully crafted from Indiana limestone. These historic elements now frame a transparent atrium that provides a focal point for the building and surrounding academic precinct.
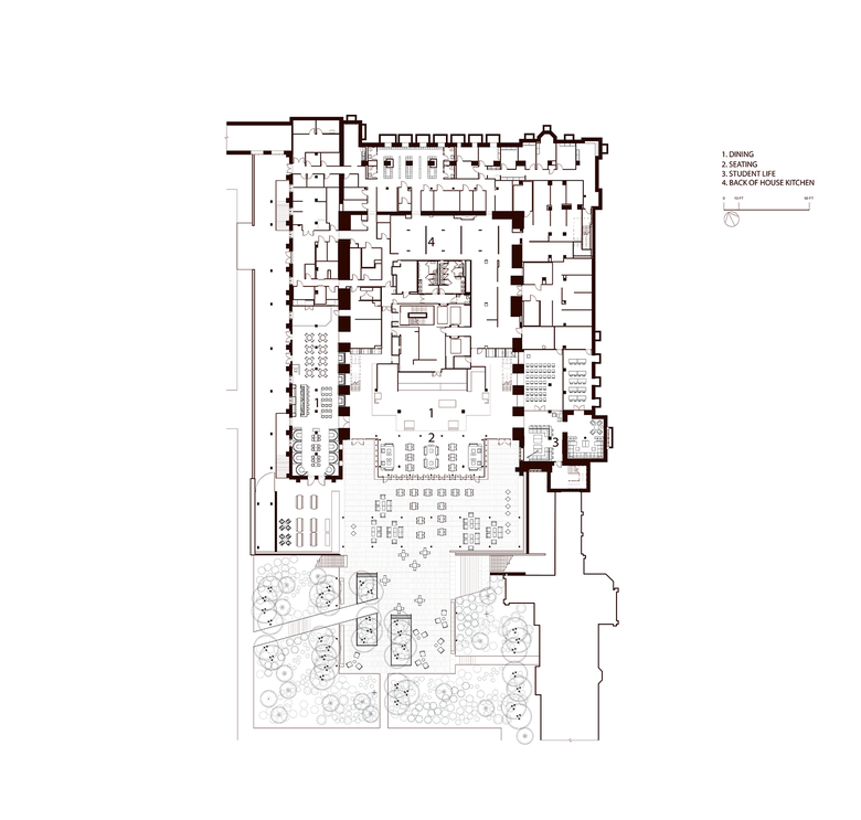
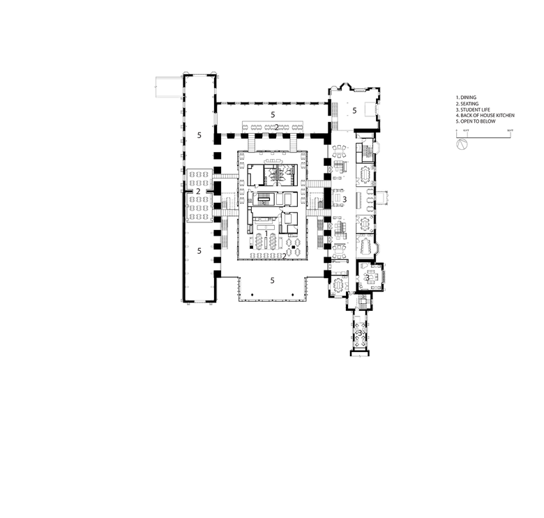
The new design focuses on the introduction of lightness and porosity to the structure, inviting students in from all directions and activating sightlines across the university precinct. The social hub offers a variety of comfortable and dynamic spaces that encourage students, faculty, and alumni to congregate and interact. These student life spaces include environments for both formal and informal study, meetings and presentations, as well as larger spaces for rehearsals and performances.
The West Campus Union has become the nerve center for co-curricular activities at Duke, hosting the University’s diverse collection of clubs and organizations. Conference rooms, small group meeting areas and multi-purpose spaces are spread throughout the building to provide versatile spaces for student connection outside of their residences and classrooms.
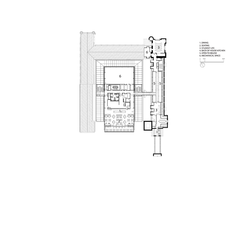
Transparency, connectivity and craftsmanship are central characteristics of the building’s design, introducing new spatial compositions meant to foster a greater sense of community. Dynamic and overlapping volumes weave together a myriad of activities that enhance the student experience while linking the historic legacy of the West Campus Union to its newfound energy. Circulation patterns that trace the campus master plan travel to and through the reconnected West Campus Union. Large portals framed into the existing stone walls, lined in blackened steel, open up views across the building. Steel and glass balconies perched in the gothic wood trusses allow fresh vantage points into the legacy of the past. A series of glass bridges enable shortcuts that link previously isolated spaces. This new network of connections creates a buzz of movement and interaction around the building, cultivating a palpable energy that defines the revived student community.
The new West Campus Union also brings forward culinary food exploration and education, housing 12 dining venues showcasing international and local cuisines, in collaboration with local vendors and food concepts. The new dining core provides made-to-order cooking featuring fresh ingredients and healthy, farm-to-fork organic options intended to encourage healthy lifestyle choices. No soda is served in the building, rather a range of hand-made flavored waters are made available free of charge.
The activity of coming together around a meal was always central to the historic dining hall’s programming as well as the epicurean ideal of coming together in the “garden” to commune and learn around the sharing of a meal. Today, influenced by the progressive millennial student body, the transformation of the West Campus Union is characterized by a modernized philosophy in higher education culinary offerings toward greater cultural diversity and novelty. The original cafeteria style kitchens in the center of the building have been removed and replaced with exposed kitchens – celebrating food and its preparation. This new core, offset from the surrounding historic dining halls, provides an unencumbered “market” experience. Inspired by hugely popular culinary markets like Eataly in New York, Borough Market in London, and the Terminal Market in Philadelphia, the experience at the West Campus Union provides students with a large variety of food offerings and culinary styles, accessible from a day-lit internal street with ample places to sit amidst a lively dining environment. More conventional seating options are located in the historic dining spaces, as well as outside in the reinvented Crown Commons to the south of the building.
The building’s transformation has also been mirrored by a renovation of the landscape surrounding it. The Abele Quad is now highly ordered, legible, and mature. These areas have been coordinated within the larger landscape master plan and are seamlessly integrated to other recent upgrades on the quad, including Perkins Library. The open expanse has become heavily used as a recreational space for organized student activities and events, as well as impromptu gatherings. The ground level dining extends out into a newly designed exterior space, the Crown Commons, that includes outdoor dining areas, a beer garden, more contemplative seating areas, and is layered with a new bridge/pavilion, designed by James Carpenter floating above.
The introduction of these new spaces and connections within the precinct has provided the Duke students and faculty with a revitalized communal home that enhances the values already present at the University. The renovation and expansion of West Campus Union marks a significant architectural intervention that aspires to connect, preserve, and sustain student life.
PROJECT DETAILS
Architect
GRIMSHAW
Landscape Architects
Reed Hilderbrand
Structural Engineering
Buro Happold Consulting Engineers
MEP/FP
Vanderweil Engineers
Facade Consulting
Front Inc.
Food Service and Kitchen Design
Yui Design
Restaurant Branding and Interior Design Collaborator
Celano Design Studio
Civil Engineers
Stewart Consulting Engineers
Lighting
Tillotson Design
Acoustics\AV\IT
Jaffee Holden
Signage and Wayfinding
Two Twelve
Code and Fire Engineering
Jensen Hughes
Door Hardware
Glezen Fisher Group
General Contractor
Skanska USA
Photographer
James Ewing Photography












