The Curious Construction on John Lemley Lane
All images courtesy of Ben Pennell
This house on John Lemley Lane in Christiansburg, a town in Virginia's Valley and Ridge region, would never be confused with its neotraditional neighbors. In lieu of dormers, vinyl siding, and asphalt shingles, the house designed by Ben Pennell has exposed trusses, fiber cement panels, and a metal roofs. Inside are more features that veer from the norm. Here we take a look at the recently completed house from outside to inside, from bottom to top.
World-Architects “met” architectural designer Ben Pennell in 2022, when we featured My First House Flip, his renovation of a house in Brookings, South Dakota, as a US Building of the Week. Capped by an angular witch's hat-like roof outside and sculpturally smooth inside, the house was idiosyncratic but hard to dislike. At the time of the feature, Pennell was working on his first ground-up building, a house in Christiansburg, Virginia, not far from Blacksburg and the campus of Virginia Tech, where Pennell is an adjunct professor. Privately funded, the four-story, four-bedroom, four-bath spec house on John Lemley Lane recently wrapped construction. While it may have arrived a couple years later than planned, the house's design is just what one might expect after My First House Flip: a quirky yet appealing assemblage of materials, assemblies, inspirations, and artistic touches. Below is a visual tour, with commentary, of the house Pennell describes as “a bastard Frankenstein of things I like.”
Faced with a sloping site and the desire to push the house as close to the front property line as possible, the lowest level of the house acts as a retaining wall and is partially covered by the large rocks excavated for the basement.
The three upper floors are clad in BC grade plywood that is stained white and explicity recalls Herzog & de Meuron's maroon-colored Plywood House from 1985.
The long front elevation of the house features a second skin: overlapping, shingle-like fiber-cement panels that extend past the footprint of the house and sit behind stick framing and steel rod diagonal bracing.
A stucco volume projects from the mega shingles, its single circular opening echoed by the dome skylight in the middle of the overlapping, telescoping metal roof that recalls Japanese temples.
As we'll see, the skylight is one of the keys to the house's interior arrangement. Looking like the Astrodome of an old bomber plane, the skylight is one many custom pieces in the house fabricated by Pennell.
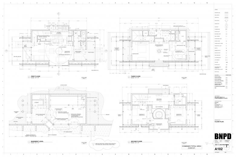
The compact floor plans — each floor is around 600 square feet (56 m2) — indicate how the light from the skylight extends down to the first floor.
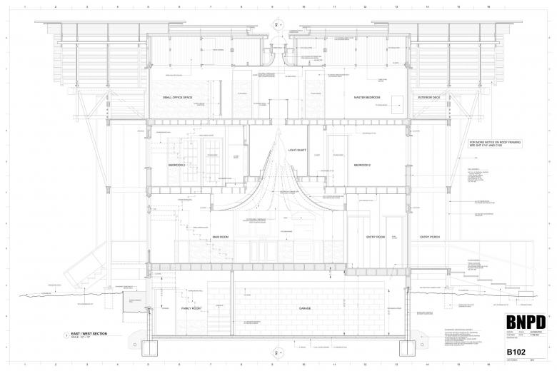
How that is done is more clearly explained in the longitudinal section, where a light shaft and curved ceiling with decorative chandelier are visible in the middle of the four-story house.
The influence of Japanese architecture is again evident inside, especially at the entry that is a step below the rest of the first floor and marks a transition from exterior to interior, from the outside world to home.
The light coming into the open living area on the first floor from the south-facing window is balanced by the light coming from the skylight above.
Pennell describes the shape of the ceiling at the base of the light shaft like a trumpet funnel; it is a bit like an inversion of another Herzog & de Meuron project: the Elbphilharmonie Hamburg.
The chandelier and sculptural piece inserted into the light shaft recalls Baroque or Rococo churches, though Pennell's sounds more like the Psychedelic Sixties: “The Polycolonic-Garbage-Disposal-of-Eternal-Bliss-and-Karmic-Unity.”
Moving upwards, the second floor of the house is the most traditionally domestic. Still, the doors, sidelites, walls, and ceilings are more California Craftsman than builders grade.
The second floor also has surprises, such as the bonus room tucked next to the light shaft, accessed from the two bedrooms via Lilliputian openings.
Drawings of the roof framing accentuate the complexity of the trusses, most of which are left exposed: steel outside, wood inside.
A photo of the master bedroom on the third floor, before the light well is opened up in the ceiling and floor.
The same view after, showing the Japanese-inspired brackets and additional illumination coming from the skylight in the roof.