təməsew̓txʷ Aquatic and Community Centre
A 'Sea Otter House' in British Columbia
Translated as “sea otter house” in hən̓q̓əmin̓əm̓, the Down River language of local First Nations, təməsew̓txʷ is a combined aquatic and community center in New Westminster, British Columbia, that was designed by Vancouver's hcma. The architects answered a few questions about the project.
What were the circumstances of receiving this commission?The project was commissioned by the City of New Westminster through a Request for Proposals (RFP) process for the replacement of the ageing Canada Games Pool and Centennial Community Centre.
A small municipality, the City of New Westminster had bold ambitions for their community’s only aquatic and community centre. Guided by its “Seven Bold Steps for Climate Action,” the City sought a new civic home that would reflect its commitment to inclusivity, accessibility, and environmental leadership.
As a replacement of two beloved community facilities, the design team used extensive community engagement to shift the focus from a single competitive focus to more inclusive and varied programming that welcomes people of all ages and abilities.
təməsew̓txʷ Aquatic and Community Centre is Canada’s first completed all-electric facility to achieve the Canada Green Building Council’s (CAGBC) Zero Carbon Building – Design Standard, a significant transition for a building typology that has traditionally been one of the largest emitters of greenhouse gas emissions for many local governments.
It is also the first facility to use the gravity-fed InBlue filtration system, which reduces the need for chlorine usage and the creation of associated harmful byproducts, resulting in improved air and water quality.
As the City of New Westminster’s largest capital project to date, təməsew̓txʷ is a flagship of civic climate leadership, achieving a 92% reduction in greenhouse gas emissions compared to the previous facility and completely eliminating building fossil fuel combustion.
The architectural response reinstates the character of the precolonial landscape. Shifting to a cardinal north/south orientation, the building sits along the natural topographic line of the former headwaters of the Glenbrook Ravine, which was erased by development decades ago. Now, the headwaters have been resurfaced as a major public green space and rain garden, reconnecting them with the remaining branch of the ravine to the south.
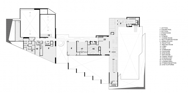
The building stretches alongside this new green space, realigning the site circulation system. The building opens out to the community on four sides and two major civic plazas act as entry points, connected by the main lobby. The two plazas have been designed for different arrival experiences: the south more ceremonial and natural, and the north more playful and urban. A building with no “backside,” the functional planning carefully resolves the back-of house needs with the pedestrian experience.
The building grid aligns with this new north-south orientation, allowing for a generous but carefully controlled daylighting approach and enabling a visual permeability through the entire cross section of the building, including the universal change rooms.
Running the length of a city block, the 10,684-m2 / 114,571-sf combined aquatic and community centre operates both as a strong civic statement and as a considered, urban intervention. The stepped, modulated south elevation creates a human scale where the building touches the ground, and increases the perimeter engagement with the re-established ravine space. The roof forms are broken apart and molded volumetrically to respond to program needs, neighbourhood context, and mechanical efficiency. These disparate roof forms are then stitched together with black, standing seam metal and the use of a singular, unifying roof edge. The main entrance becomes the single instance where this roof line is broken, marking a special point of welcome.
The təməsew̓txʷ Aquatic and Community Centre is situated on the edge of a residential neighbourhood north of the Fraser River, which has been a cultural and economic life source for Indigenous peoples for thousands of years. Located on the site of the former headwaters of Glenbrook Ravine, which was lost to development over the preceding decades, the project takes a strong stance toward reconciliation with the natural character of the landscape.
Prioritizing an east to west cardinal orientation over the colonial urban grid, the building sits along the natural topographic line of the former ravine, counter to the residential streets that surround it. The headwaters to the north have been reconnected with the remaining branch of the ravine to the south, establishing a major public green space and rain garden directly adjacent to the South Plaza of the facility.
Additional significant physical constraints influenced the design approach: the Canada Games Pool and Centennial Community Centre, the two 50+-year-old buildings that təməsew̓txʷ replaces, were on site and had to remain operational throughout construction. A major regional sanitary line also runs through the site, which could not be built upon.
Extensive public and stakeholder engagement over two years directly informed the design, involving urban Indigenous, Host Nations, multicultural groups, and an accessibility committee. Community input steered many of the programmatic decisions, influencing the balance between traditional aquatic programming and new wellness-based, inclusive spaces.
Inclusive design and physical accessibility are core aspects of the facility’s planning and detailing, evidenced by the generosity of circulation space; high contrast signage that includes braille and tactile directories; fully universal washrooms with adult change tables and lift devices; ramps and zero-entry conditions into the leisure and family hot pools; as well as a transfer ledge in the adult hot pool and moveable floor in the 50m pool. The pool change rooms offer options for all-genders as well as dedicated male and female spaces. The facility has achieved Rick Hansen Foundation Accessibility Gold Certification.
A Naming Advisory Panel made up urban Indigenous and local First Nations gifted the name təməsew̓txʷ to the centre. Meaning “sea otter house” in hən̓q̓əmin̓əm̓, the Down River language of local First Nations, the panel chose it because of the playfulness, joyfulness, and family-oriented nature of the sea otter, which reflects key themes that emerged during community engagement. A pronunciation guide for təməsew̓txʷ can be found here—the Indigenous Knowledge Holders involved have requested that the spelling of the centre's name not be anglicized.
A major public sculpture by Squamish Nation artist James Harry called Miyíw̓ts (“Water’s Edge”) welcomes visitors and honors the Host Nations to whom these territories belong.
hcma designs buildings, brands, and shared experiences that connect people. Because with collective strength, communities can work together to make a difference to the issues that matter.
təməsew̓txʷ Aquatic and Community Centre reflects the firm’s values of inclusion, environmental stewardship, and community connection, aligning with hcma’s broader body of work in social and civic infrastructure. Over decades, the firm has designed and delivered community recreation facilities that serve their communities, innovate, and inspire.
The project demonstrates hcma’s leadership in high performance buildings, applying strategies to minimize environmental impact while advancing inclusive, accessible design that embraces everyone.
Email interview conducted by John Hill.
Project: təməsew̓txʷ Aquatic and Community Centre, 2024
Location: New Westminster, British Columbia, Canada
Client: City of New Westminster
Architect: hcma, Vancouver
- Principal in Charge: Paul Fast (Architect AIBC, MRAIC)
- Consulting Partner: Darryl Condon (Architect AIBC, AAA, SAA, OAA, FRAIC, LEED® AP)
- Project Architect: Alexandra Kenyon (Architect AIBC, MArch, BDes)
- Senior Architect: Ian McLean (Architect AIBC, LEED AP)
- Architect Registered in Ireland: Maeve Counihan (Architect MRIAI, LEED GA, March, BScArch)
- Technical Director: Rob Wilson (Dip Arch Tech, BSc)
- Architect: Michael Dimock
- Intern Architects: Elena Bushell, Katherine Mathers
- Architectural Technologist: Nicole Laguit
- Senior Director of Sustainability: Rebecca Holt
- Building Performance Advisors: Jason Burtwistle, Zina Berrada
- Sustainability Coordinator: Natalia Mulekova
- Senior Director of Social Impact: Marni Robinson
- Inclusive Design Advisor: Fiona Jones
- Wayfinding and Signage Designers: Amanda Klassen, Alice Rooney
- Wayfinding and Signage Technologist: Maianne Capellan
- Production Lead: Judy Bau
Mechanical: AME
Electrical: AES Engineering
Landscape: PFS Studio
Cost: Ross Templeton
Civil: Aplin & Martin
Acoustic: RWDI
Wayfinding + Signage: hcma
Public Art: James Harry
Project Manager: Turnbull Construction
Contractor: Heatherbrae Builders
Building Area: 10,684 m2 (114,571 sf)













