The city of Tianjin, with a population of over 15 million, is located at the Bohai Sea close to Beijing. Together with Tangshan, Beijing and the Xiong’an New Area (established in April 2017), Tianjin is part of a regionally scaled urbanized zone in northern China (Bohai Economic Rim), and an entry point to this powerful region.
Architect: Atelier Li Xinggang
Lead Architects: Li Xinggang, Zhang Yinxuan, Yan Yu, Yi Lingjie, Liang Xu
Project location: Jinnan District, Tianjin
Completion Year: 2015
Gross Built Area: 18362 square metres
Structure: Ren Qingying, Zhang Fukui, Li Sen
Awards: 2016, WAACA WA Technological Innovation Award Winner
Photo credits: Sun Haiting, Zhang Qianxi, Zhang Guangyuan
Tianjin University’s new Peiyang Park Campus opened in 2015 in the Hexi-District southeast of the historic centre of the city: in the same year the university celebrated its 120th anniversary. This new campus is home to more than 20 thousand teaching staff, students and employees, and occupies a triangular site of almost 2.5 million square metres, within the Haihe Education Park. The organisational structure (of the Education Park) is based upon a strong north-south grid, that delineates the different departments. The landscape surrounding the campus comprises a dense built-up area with canals and open spaces.
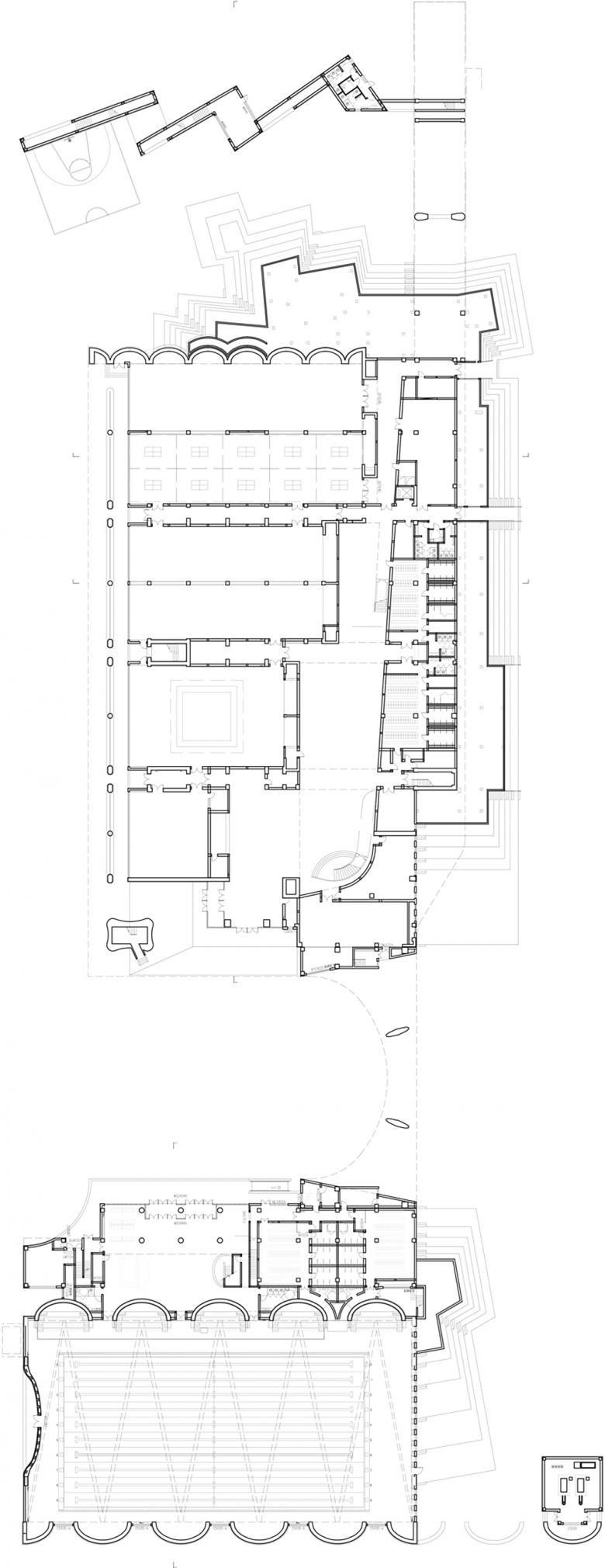
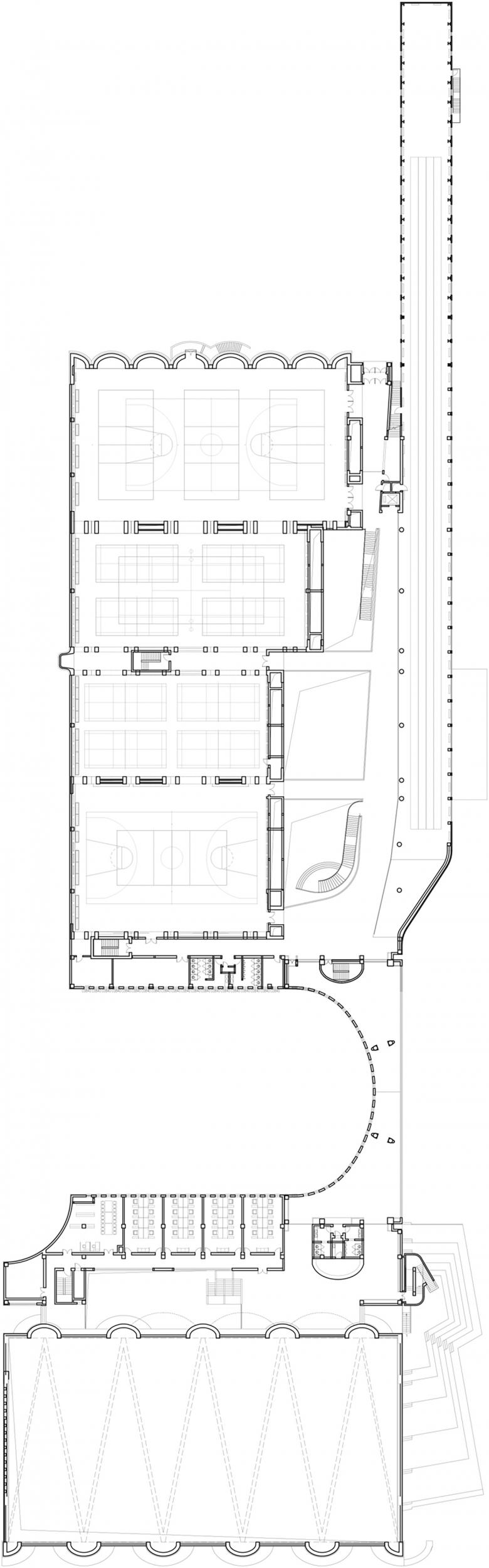
The university needed to provide facilities for the many students at the campus, and for the rich and varied range of sports offered. Li Xinggang and his team designed the new sports facilities presented here. They are situated in the northeast of the Peiyang Park Campus, and total more than 18,300 square metres of built floor area. Among the main buildings are an indoor sports centre, a swimming pool, connected by an arched bridge, which together frame a public space on three sides.
The ground floor of the swimming hall contains the pool, with additional facilities located in a side volume addressing the public space. At first floor level, the swimming hall is connected via the bridge to the sports centre on the north side of the public space. Small-scale functions are arranged on the ground floor of the sports centre, under a row of four large sports halls of varying height, structure and roof form. They are connected at first floor level by a 140 metre-long indoor running track that forms the building edge to the outdoor sports fields, and that juts out at the north end to define another public space. An open staircase connects this latter space to the outdoor sports fields, via an irregularly-patterned path.
The most striking feature of the complex are the different roof forms; all are vaulted concrete structures. In the case of the swimming pool, the vaults are conical in shape and bring in daylight into the space from semi-circular openings at each end. The roof construction is carried by V-shaped supporting walls, with the same conical semi-circular form as the roof vaults. The exposed concrete materiality contrasts nicely with the outer facade of regularly-bonded red brick. In the interior, the spaces made by the semi-circular supporting walls are used for a flight of stairs to where the visitors can sit. The strong architectural space is reinforced by the raw materiality, which together with the daylight and the water in the pool, create a dramatic atmosphere.
The main attractions in the gymnasium to the north are the four sport-halls arranged next to each other in a row. The ground floor also contains a bigger public indoor space, nestled among several smaller spaces, which open partly to the second floor via openings and stairways. Here again, the façade is completely closed and expressed in red brickwork to the street. The different heights of four halls result in a stepped façade, and windows to the street only occur at ground floor level. The roofs of all four large volumes are variously vaulted, and the north façade of the final hall in the sequence is also constructed of conical semi-circular concrete elements. Additionally, load-bearing interior walls that separate and connect the different halls are also designed as V-shaped elements.
From the outside, the dramatic V-shaped external wall elements give the complex a strong appearance in an otherwise mediocre urban surroundings. Li Xinggang and his team designed this new huge sport complex as a landmark within the new university campus, one that contains impressive spaces and a pure material expression. The calm appearance to the outside and the strong atmospheric space inside are like two sides of the same coin. The construction, which can be understood both form the outside and from the inside, is a rarity in contemporary Chinese architecture. With this complex, the architects have designed and built an example that will hopefully find many imitators.
















