World Building of the Week
Nothing Design Company Headquarters
An empty one-story dentist's office in Chicago's Logan Square neighborhood, about five miles northwest of the Loop, has been transformed into the two-story home for a boutique furniture studio. A workshop and showroom for Nothing Design Company sits behind the screen-like brick facade, no doubt turning the heads of people driving by. Range Design & Architecture answered a few questions about the project.
What were the circumstances of receiving this commission?Our first encounter with our future clients was at their storefront shop, a block away from what would become their future headquarters. We bonded over shared design interests and over time developed a friendship. When they acquired the site, a dentist's office that had sat empty for several years, it was natural for us to collaborate.
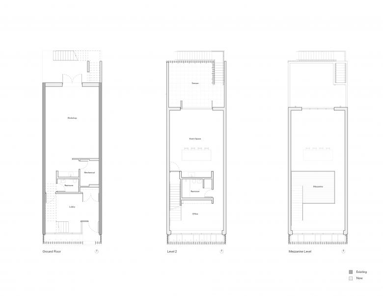
This expansion of an existing structure into a furniture design studio and showroom aims to unify and express a variety of spatial qualities—to make and house furniture, address daylighting and energy performance considerations for a south-facing facade, and build upon Chicago's historical pattern of common brick structures with face-brick fronts.
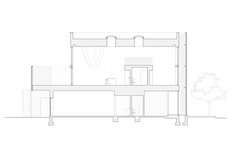
To expand the volume, common brick-bearing walls were extended vertically and due to the proximity of the property line no openings were allowed in these walls. As a result, access to light was limited to the street and yard-facing edges of the building. Taking cues from Chicago's historical pattern of face-brick fronts and common brick sides, terra-cotta colored paver bricks were employed as a brick screen on the street. This creates a distinct and contextual facade that filters natural light thereby reducing the cooling load from the direct southern exposure. At the yard-facing side of the building the brick screen, executed in common brick, transforms a second-floor patio extending the perceived edge of the space. A bi-folding, glazed door folds away to extend the usable area into the patio.
Nothing Design Co. Headquarters uses a material system to connect to the context of Chicago’s history of masonry construction, and develop a spatial experience felt throughout the project. The brick screen, the primary gesture of the design, nurtures an identity for the studio and provides a pragmatic solution to address privacy, scale and solar shading.
Brick, white oak, and weathering steel provide the canvas for the activities of the studio. Engaging the senses of occupants, the materials reflect the passing of time as light animates the brise-soleil and dapples the interiors. A xeriscape garden buffers the glazing from the screen at the first floor. In conversation with the face brick, the common brick on the east and west walls, as well as the terrace, tell the story of Chicago masonry and building methods.
The clients were intrinsic to the design process, providing the original brief and key feedback as the design developed. As a result, the project exceeds the original intentions, both serving as a showroom and creative studio, but flexible enough to host small events. Since completion, it has served as the setting for two baby showers and an intimate wedding. Spurred by the success, we are currently collaborating with the same clients on a new venture.
Originally conceived as an all-purpose space that could host events, the design evolved as the owners realized that the scale was more suited to a showroom and design studio. For both sustainability and economic reasons, we investigated the existing structure and soils to determine what level of expansion the existing structure could bear. Fortunately, we were able to preserve the existing walls and foundation.
The first iteration of the second-floor expansion contemplated heavy timber beams spanning the longitudinal bearing walls as an exposed roof structure. Due to cost, parallel chord wood trusses replaced the timber roof and were also used for the new floor structure. The material expression for the interior moved away from an expression of structure and towards an expression of volumes.
As with much of our work, the project emerged from the challenges and opportunities of the site, the program, and the client brief. We aim to reach a balance of the pragmatic and the poetic as we reconcile the physical, cultural, and economic context along with our client’s vision, budget, and schedule.
Email interview conducted by John Hill.
Location: 3426 West Armitage, Chicago, Illinois, USA
Client: Nothing Design Company
Architect: Range Design & Architecture, Chicago
- Design Principals: Casimir Kujawa and Mason Pritchett
- Project Team: Luis Vasquez
MEP/FP Engineer: Edifel Designs LLC
Landscape Architect: Nathan Wright Landscape Design
Contractor: Formed Space
Doors, Casework and Interior Millwork: Weisfeld Construction, Ltd.
Brick Manufacturer: Interstate Brick
Brick Supplier: Bricks Inc.
Site Area: 3,125 sf
Building Area: 3,500 sf
Related articles
-
-
-
Spaces for Cars – And for People
Kennedy & Violich Architecture, Ltd. (KVA) | 02.03.2026












