Nantes School of Architecture
Nantes School of Architecture
With a professional career of more than twenty years behind them, French architects Anne Lacaton & Jean Philippe Vassal continue to pursue their own coherent, personal approach to architecture. Lacaton & Vassal have constructed a discourse of their own that, although seemingly simple, embraces the complexity of contemporary reality.
All these concerns, present from the beginning of their career in all their projects, are developed exhaustively and perseveringly in the recent work we show on the new 2G magazine. Among other projects, we might point to the transformation of the Bois-le-Prêtre tower block in Paris (a built example of their investigation into how to act on obsolete blocks of flats from the 1960s and 70s in France), the multi-family housing projects in Saint-Nazaire and the School of Architecture in Nantes.
The introductory texts by Iñaki Ábalos and Karine Dana each provide a personal and novel look at the work of this French studio. To end, the text by Anne Lacaton and Jean-Philippe Vassal in the nexus section of 2G60 enables us to unequivocally grasp what the conceptual basis of their work as architects is.
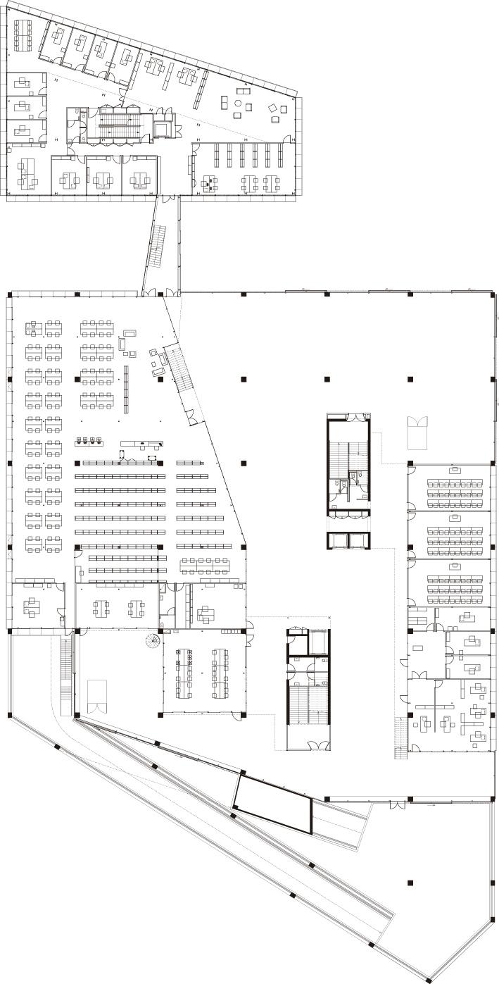
On the banks of the Loire, between the Law Courts created by Jean Nouvel and Haudaudine Bridge, the School of Architecture takes its place within the development plan of the Île de Nantes. Due to its generous dimensions, this project examines the ability a structure may have to produce mobility and to facilitate vertical planning. The great potential of its concrete skeleton leads to extremely rich and reversible situations of usage that are of interest not only to the architecture school but also to the city and the landscape.
The building is made up of a primary superstructure consisting of three decks in precast concrete hollow core planks at 9, 16 and 23 metres above the natural ground level, which increases the terrain and allows a ground surface more than twice as large as that of the programme to be constructed. These floor slabs are served by a gently sloping external ramp that progressively links the ground surface of the city and its sky.
The capacity of the floors makes loads of 1 ton per m2 possible, thus offering students the possibility to build at a scale of 1:1. A secondary structure accommodated over almost half the surface of this superstructure divides and organizes the height of these main decks. It enables the programmed spaces to be installed completely independently of the superstructure. Between these two structural systems, double-height volumes produce intermediary spaces.
Accorded no precise function, they are free and multiuse, and become a place of appropriation and free initiative. Their wide façade panels, moveable and transparent, harness the input of the sun’s rays and ensure the modulation of the indoor climate and the natural ventilation. Their extremely wide windows open onto the city. These constructed voids increase the programmed spaces. They create other possibilities, permit new ways of dwelling, of pushing programmes to the limit and of loosening up the regulations. Due to its functions, the ground floor is open and available for public activities.
The teaching spaces, library and design studios are installed in the upper levels. The top level, at 23 m, is a vast, completely open terrace jutting out over the Loire. Its appearance is of a public square-cum lookout point, with a unique view over the city. The exhibition gallery, research facility and administration offices are sited beside the Loire in an independent building attached to the main building by a footbridge at level 1.
Nantes School of Architecture
2009
Nantes, France
Architects
Anne Lacaton & Jean-Philippe Vassal
Paris
Design team
Florian de Pous
Frédéric Hérard
Julien Sage-Thomas
Lisa Schmidt-Colinet
Julien Callot
David Prade
Isidora Meier
Surface area
26.837 m2
Cost
€ 17,75M
building, exterior works and utility services
Photos
Philippe Ruault
Lacaton&Vassal
Valery Joncheray




