World Building of the Week
LifeServe Blood Center Headquarters
The LifeServe Blood Center Headquarters in central Iowa was designed by BNIM as a facility that “encourages blood donation as a lifelong habit.” The architects answered a few questions about the project, which was a recipient of the 2025 International Architecture Award presented by The Chicago Athenaeum: Museum of Architecture and Design together with The European Center for Architecture Art Design and Urban Studies and Metropolitan Arts Press, Ltd.
What were the circumstances of receiving this commission?LifeServe Blood Center selected BNIM to lead the design of the organization’s new headquarters building following an RFP (Request for Proposal) and interview process.
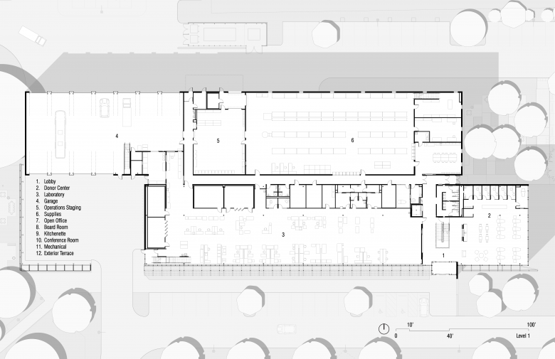
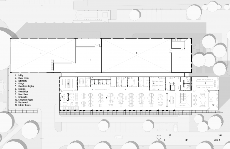
LifeServe Blood Center Headquarters provides a welcoming new office space, blood donation center, blood center operations and support space, and a 24/7 processing lab that support the organization’s vital work within the community and its mission to save lives, serving more than 170 hospitals across the Midwest region. The new facility positions LifeServe for the future, designed with the flexibility to grow and adapt while strengthening the organization’s local presence in its community of Johnston, Iowa. Generous daylight, transparency, a natural material palette, and intentional connections between employees and community donors create a facility that places LifeServe's mission on display and encourages blood donation as a lifelong habit.
LifeServe Blood Center's mission and work is strongly connected to community, both serving and working in collaboration with community members each day to deliver lifesaving blood donations. LifeServe envisioned a new space that would create a welcoming presence in the community and enhance connection between its various building users, including employees, volunteers, and donors. The design of a new headquarters building was an opportunity for LifeServe to study and rethink its processes to enhance overall function and daily workflows and to create a positive shift in workplace culture.
LifeServe's programmatic needs and rigorous standards for blood donation and processing guided the building’s design approach and construction methods. These project goals and needs, combined with the site's narrow footprint, resulted in the building's composition of a north bar and south bar module. The north and south bar are unified by the sunshade scrim that anchors the building’s southwest corner and helps establish LifeServe’s community identity. The north bar of the building includes a pre-cast concrete envelope with high bay space, storage, and a garage equipped with pull-through stalls on the westside of the site to provide key access points for vehicles supporting blood transport.
The south bar, constructed with a standard steel frame, provides a two-story office, a 24/7 laboratory space, and donor center. The building is designed with flexibility for the future to allow LifeServe to grow and adapt as organizational goals, equipment, or processes evolve. A spectrum of flexible spaces is provided for employees, including open workstations, conference areas, and a social commons area. Within laboratory spaces, mechanical and electrical systems are installed in modifiable layers above the ceiling for easy access in the case of reconfigurations and updates.
The design team held visioning sessions with LifeServe’s stakeholders, determining a series of key drivers for the new facility, including an emphasis on collaboration, flow, mission, and process. LifeServe’s previous facility presented challenges such as siloed work areas, inefficiencies, and a need for additional space. The design team worked closely with LifeServe, specialty suppliers and fabricators, the contractor, and full project team to understand design options to enhance organizational function, ensure efficient workflows and adjacencies of the site, and to address the complexities of blood movement and processing through the facility.
BNIM's core purpose guides our approach to every project: We design and deliver beautiful, integrated environments to inspire change and enhance the human condition. Similar to our work with LifeServe Blood Center, BNIM has worked with mission-driven organizations across the US and around the world to create human-purposed and high-performance spaces that support our clients and the communities they serve.
Aligned with BNIM’s other projects, LifeServe Blood Center Headquarters is focused on meaningful outcomes for community and organizational effectiveness while minimizing negative environmental impact. LifeServe Blood Center Headquarters is designed to be photovoltaic (PV)-ready and has an energy use intensity (EUI) 68% below baseline. In addition, 100% of stormwater is managed on-site, and native plantings and landscape create a beautiful site and support biodiversity throughout the seasons, providing a habitat for regional fauna and pollinators.
Email interview conducted by John Hill.
Location: Johnston, Iowa, USA
Client: LifeServe Blood Center
Architect: BNIM
- Design Principal: Rod Kruse
- Project Architect: Jeff Shaffer
- Project Manager: Kayla Berkson
- Project Team: Dana Sorensen, Jonathan Sloan, Jeremy Kahm, Tyler Jessen, MJ Deasy, Tina Wehrman, Katie Neighbour
MEP/FP Engineer: MODUS Engineering
Civil Engineer: Civil Design Advantage
Landscape Architect: Confluence
Lighting Designer: MODUS Engineering
Interior Designer: BNIM (Tina Wehrman, Katie Neighbour)
Contractor: The Hansen Company
Cost Estimator: Stecker-Harmsen, Inc.
Glazing Contractor: Elite Glass & Metal
Facade Installer: Hagen Installations
Construction Manager: The Hansen Company
Owner’s Representative: Formation Group
Site Area: 5.8 acres
Building Area: 56,290 sf
Important Manufacturers / Products:
- Facade system: Tubelite
- Cladding: Tekko Steel, Petrarch, PDM Precast, David Bear Inc.
- Glass: Vitro
- Windows: Kingspan, Solatube
- Doors: Tubelite, Wayne Dalton, Stanley, Uniq-Wall, VT Industries
- Roofing: Elevate
- Waterproofing: Tremco
- Insulation: Atlas
- Vertical circulation: Kone
- Interior finishes (e.g. flooring, partitions, ceilings, tile): Mannington, Daltile, Autex, Linea, Bradley, Tarkett, Concreteworks East, Nevamar, Corian, Cambria
- Fixtures: Waldinger
- Lighting: 3E, CSLA
- Appliances: NFM
- Furniture: Pigott
- Landscape products: Pigott















