From Poetry to Space
Songyang has a new poetry museum. The Beijing-based architect Xu Tiantian received the commission for this. With her office DnA_Design and Architecture, she has already completed many small interventions in the Songyang region, with an approach she describes as “Architectural Acupuncture”.
Location: Songyang, Lishui, Zhejiang Province
Client: Songyang County Museum
Architects: Xu Tiantian/DnA_Design and Architecture
Lighting Design: Zhang Xin Studio, Architecture Department of Tsinghua University
Structure System: Steel frame shear wall structure
Design: September 2017 – December 2017
Construction: February 2019 – February 2021
Site area: 534 sqm
Building area: 628 sqm
Photographer: Wang Ziling
The Xiping community of Songyang County is the place where the new Museum of Poetry is located. It is dedicated to the memory of the late poetess Zhang Yuniang (1250–1277) whose poetry is still praised today because she expressed her despair in words after the death of her fiancé. She is esteemed as one of the “Four great Song Dynasty women poets”, along with Li Qingzhao, Zhu Shuzhen, and Wu Shuji. Zhang was the author of two volumes of Orchid Snow – A collection of poems.
For hundreds of years a memorial tomb for Zhang Yuniang, the Parrott Cenotaph, stood in a maple tree forest. Today only a small triangular plot with few trees, the original cenotaph and Lanxue Spring Well are left. The place has otherwise been built upon and the site for the museum is actually a remnant of the original forest.
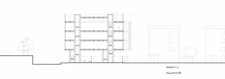
The triangular shaped site is bordered by two streets meeting at an acute angle. The museum building stands on the broadest side of the plot, close to the surrounding dense urban fabric. The built-upon area of the site remains very small, which is why the structure is made of reinforced concrete and the facades of glass. The two escape staircases required by the fire regulations for a public building incorporate the load-bearing structural elements.
The three levels of the museum begin on the first floor, so that the ground floor remains open and becomes part of the memorial garden. The garden is separated from the street by a glass exterior wall compressing panels of varying transparency to direct views from outside to inside. A second oval glass wall within the garden space separates the cenotaph, the well and an installation with seating and engravings of the poetry of Zhang Yuniang to create a contemplative setting under the trees.
On the open ground floor of the building there are only the two stairwells with minimal ancillary rooms, while the three upper floors each house a central room where a maximum of 20 people can come together for events and exhibitions. The permanent exhibition recalls the life of the female poet in the context of the war at the end of the Song Dynasty.
On the roof, which is open to the public, there is a platform with a view over the neighbourhood. The different transparencies of the glass wall around the garden and the facade of the building arouse curiosity and also reflect the power of poetry. The building not only shines like a lantern in the evening hours, but is also intended to act as a beacon for literary cultural production and thereby adjust the self-image of local residents/ the local community.
After construction was completed, the local Orchid Snow Poetry Club took over the management of the museum. The building can be seen as a micro-scale intervention to restore the neglected cultural heritage, re-activate the discrete urban corner, and to offer a new venue for cultural activities to the surrounding communities.
Today, the former maple forest is difficult to imagine. The small grove of trees preserved by Xu Tiantian and the new white gravel surface given to the garden contribute a relaxed atmosphere appropriate to the place. The different degrees of transparency of the glazing – both for the façade and the garden wall – and the light-coloured ground surface create a background that highlights the artifacts of the source, the memorial stone and the poems.
In a heterogeneous, rather ordinary district, the museum brings a quality into play that clearly stands out from the existing context. The space for discourse on poetry is an important aspect of a culture in which literature and the art of writing have played an important role for centuries. With such a place as the Museum of Poetry the cornerstone is laid for the revitalization and renewal of these cultural traditions, which are now in the hands of the local operators.
Related articles
-
-
The Three-Body Problem: Trapped in a Wave Sandwich
Eduard Kögel, Scenic Architecture Office | 13.04.2026 -
-

















