World Building of the Week
C294 Apartments
With its sculpted balconies in concrete, people walking by the apartment building at the southeast corner of Campeche and Culiacan in Mexico City's Condesa neighborhood would be forgiven for assuming it is new construction. In fact, it is an adaptive reuse of a run-down building from 1953, carried out by Michan Architecture, who answered a few questions about the project.
What were the circumstances of receiving this commission?It was a private commission. I met someone related to the project through teaching an architecture seminar.
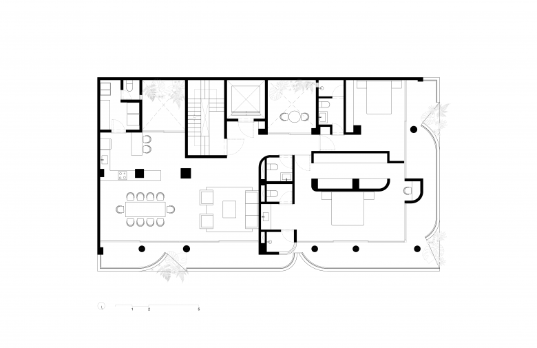
That it is an adaptive re-use project of an existing damaged structure, turned into a new residential project. The design carefully studies and adapts to the existing structure, to propose a solution that works with it and at the same creates a new life for the building.
The project draws inspiration from the conditions of the existing structure as well as the re-interpretation of the Art Deco buildings commonly found in Mexico City’s Condesa neighborhood.
The site is the existing project, which was a damaged concrete structure. The project uses the existing structure as a way to express the exposed-concrete quality found in the building. The new addition blurs the boundaries between old and new and adds areas for landscape, integrating biophilia into the design by dressing it in green living plants and promoting health benefits from integrating nature.
It was a very close collaboration as the design of the building had to adapt to the existing conditions of the structure. The client lives on the top floor.
The project reaffirmed its design as the client was cleaning the existing structure. It was a process similar to archeology where small design decisions had to be made at the time that they were revealed within the existing structure.
It relates in the way we conceptualize and think of architecture as a whole, where form, structure, material expression, function, program and many more different aspects shape the design of our projects.
Email interview conducted by John Hill.
Location: Campeche 294, Condesa, Mexico City, Mexico
Client: EAH
Architect: Michan Architecture, Mexico City
- Design Principal: Isaac Michan Daniel
- Project Architect: Alexandra Bové
- Project Manager: Fernando Gomez
- Project Team: Fernando Alamilla, Benjamin Caballero, Pilar Colado
- Collaborator: Tarek Gutierrez
MEP/FP Engineer: EAH
Landscape Designer: Michan Architecture
Lighting Designer: Ideas en Luz
Interior Designer: Michan Architecture
Contractor/Construction Manager: EAH
Site Area: 210 m2 (2,260 sf)
Building Area: 1,190 m2 (12,809 sf)
Important Products/Manufacturers:
- Cement: Cemex
- Bathroom: Porcelanosa
- Kitchen: Cocinas Olimpic
- Woodwork: Benigno Galindo Retama


















