Hinterhofhaus „GINO“
Auf einem Grundstück an der Fürther Straße in Nürnberg wird eine Baulücke im Hinterhof geschlossen und neuer Wohnraum geschaffen. Es entsteht ein zum Hof orientiertes, dreigeschossiges Wohnhaus mit drei Einheiten.
Das Gebäude fügt sich in seiner Kubatur in den von drei Seiten umbauten Bauplatz ein. Auf dem Grundstück entsteht somit zwischen bestehendem Vorderhaus und neuem Hinterhaus ein Hof, der von allen Bewohner*Innen genutzt werden kann.
Für das neue Hinterhaus wurden großflächige Fassadenöffnungen gewählt, um eine ausreichende Belichtung der Nord ausgerichteten Apartments in der dicht bebauten, Lage zu gewährleisten.
Die Erschließung der Wohneinheiten erfolgt über ein außenliegendes, freistehendes Treppenhaus. Die tiefen Treppenpodeste dienen zusätzlich als Freibereiche für die Bewohner*Innen mit Blickkontakt zum Hof.
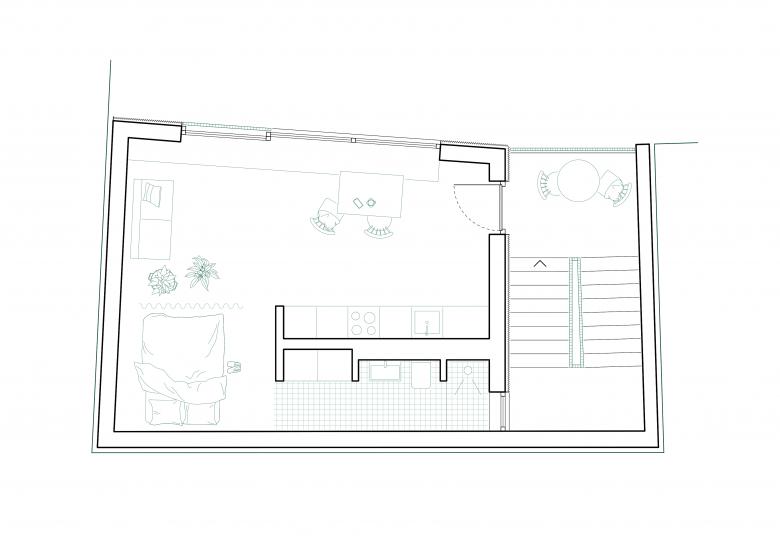
Die drei Wohneinheiten verfügen jeweils über denselben Grundriss: ein Einraum, welcher durch einen rückwärtigen Einbau für Bad und Ankleidebereich mit Stauraum unterteilt wird.
Der Schlafbereich kann durch einen Vorhang vom Wohn- und Essbereich abgetrennt werden.
Eine lange Sitzbank am Fenster zum Hof bietet Stauraum und flexible Sitzmöglichkeit für den Koch-Ess-Bereich.
Das Gebäude erhält eine Fassadenverkleidung aus blankem Aluminium in gezackter Form, welche es stark vom Kontext absetzt und zu einem eigenständigen Baukörper werden lässt. Diese helle Fassade strahlt auf den Innenhof ab und gibt ihm zusätzliche Helligkeit. Gleichzeitig nimmt sie aber auch die Farben der Umgebung und des Himmels auf und erscheint jeden Tag etwas anders.
Durch Kriegsaufschüttungen im Untergrund musste das Gebäude auf Mikrobohrpfähle gegründet werden. Der Bau wurde als Massivbau aus Hochlochziegeln mit vorgehängter, hinterlüfteter Fassade erstellt, die Decken bestehen aus Fertigelementen, analog zu den Treppen. Als farblicher Akzent sind die Brüstungen der Erschließung und der Holz-Aluminium Schiebefenster grün lackiert, diese Farbe findet sich als Zuschlag im Sichtestrich der Wohnungen und in kleinen Details wie im Schreinermöbel und den Badfliesen wieder.
- Jahr
- 2022
- Projektstatus
- Gebaut
- Bauherrschaft
- privat
- Team
- Steven Davé, Anja Davé, Alexander Hofmeier
- Tragwerksplanung
- Trafektum















