Wohnen am Herbert King Park
Rheinfelden, Deutschland
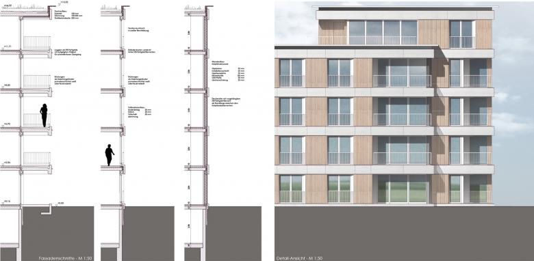
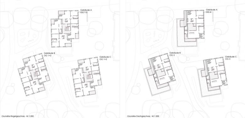
Realisierungswettbewerb ‚Wohnen am Herbert-King-Park‘ in Rheinfelden (Baden)
2019, 2. Preis
- Architekten
- Jakub Pakula Architektur
- Jahr
- 2019
- Projektstatus
- Design
- Architektur
- Pakula & Fischer Architekten GmbH
Dazugehörige Projekte
Magazin
-
-
-
Periphery as Method: On Architecture’s 'Dispositional Intelligence'
Guiomar Martín | 15.05.2026













