Technology City Hub Building
wenzhou, China
POA Architects released the design of ‘Technology City Hub Building’.
Wenzhou, a bright pearl on the southeast coast of China, is one of the three central cities of Zhejiang Province, and the economic, cultural, scientific and technological, financial and transportation centre of southern Zhejiang. 2012 August, Wenzhou High-tech Zone was upgraded to a national high-tech zone with the approval of the State Council. 2015 Early 2015, Wenzhou Municipal Party Committee and Municipal Government decided to build the Wenzhou National High-tech Zone based on the principles of ‘industry concentration, element concentration, function integration and production-city integration’, and to promote the comprehensive transformation and upgrading of the industries in Wenzhou and southern Zhejiang. In early 2015, Wenzhou municipal party committee and municipal government decided, based on Wenzhou national hi-tech zone, with the principle of ‘industry concentration, element concentration, function integration, industry-city integration’, to build Wenzhou Zhennan Science and Technology City, to comprehensively transform and upgrade the industries in Wenzhou and Zhennan area, and to promote the construction of the eastern city centre of Wenzhou.
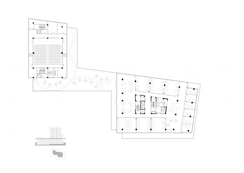
The total land area of the project is 11,090 square metres. The total building area is 37,507 square metres, of which 25,507 square metres are above ground and 12,000 square metres are underground. The project is located in Wenzhou Zhennan Science and Technology City, which has a good location advantage. The project aims to be a gateway to the city, enhance the overall urban style and contribute to the quality of the office environment in the new area.
The development of Tech City inspired the design team to incorporate four key values: foresight, science, efficiency and harmony in order to properly reflect the value of a mixed-use project in an urban area and as a place for people to gather. The space is digitally activated to create a dialogue between the traditional and the future. Our design embraces ancient Eastern philosophies that look to science and humanity, and presents them in a modern way.
Eco-sustainability continues to be a topic of emphasis, utilising green and clean energy to create a passive office building with ultra-low energy consumption. Upon completion, the Digital Hub Building in Zhennan Science and Technology City will be on the regional eco-friendly list along with the surrounding park belt.
- Architekten
- POA Architects
- Jahr
- 2022
- Bauherrschaft
- Wenzhou Zhennan Science and Technology City Kotai Construction Investment Co.
- Team
- PAN Chengshou (Partner), LINHAO, Wang Fuhong, Yang Jing, Zeng Lin, Jin Wei
- Consultant
- Zhejiang Natural Architecture Design Co.
Dazugehörige Projekte
Magazin
-
-
Building of the Week
A Loop for the Arts: The Xiao Feng Art Museum in Hangzhou
Eduard Kögel, ZAO / Zhang Ke Architecture Office | 15.12.2025 -
















