Path Yard:Zhiruan Art Gallery
Zhaozhuizi Hutong No.86/88/90, Beijing, China
Path yard: Zhiruan Digital Art Gallery is located at Zhaozuizi Hutong No. 86, 88 and 90 in the Tianqiao Historical and Cultural District in Beijing. As one of the pilot projects for the organic renewal of the northern bungalow area of Tianqiao, the project has not only made important attempts in building renewal, but also played the role of a pilot project in serving the organic renewal of the business model of the Tianqiao Performing Arts District. "Path yard: Zhiruan Digital Art Gallery" will become an important node in the micro museum clusters in the hutongs of the northern bungalow area of Tianqiao. together with projects such as the "Symbiotic Apartment" that are renovated from the tenement courtyards, the micro museum spaces of the renewed whole-yards will form an organic network between the organically renewed architecture and social ecology of the northern bungalow area of Tianqiao .
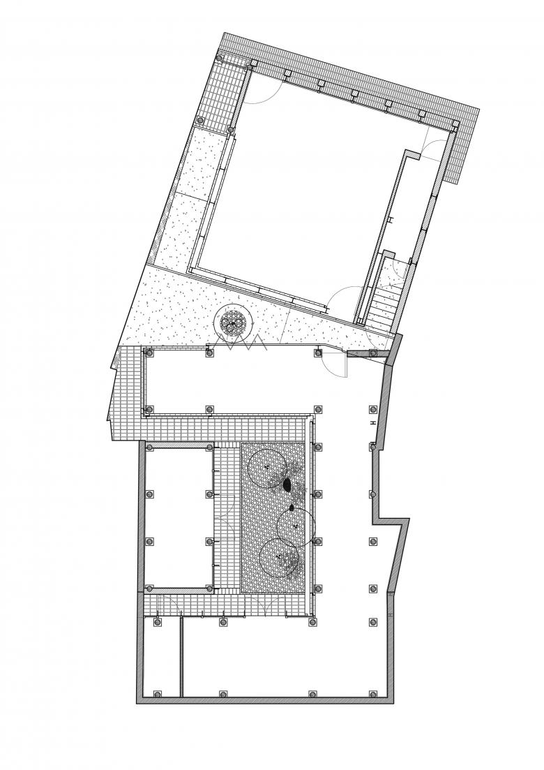
Before the renovation of the project, the original site included a flat-roofed brick-concrete structure building (Zhaozuizi Hutong No. 90 ) on the north side of the plot adjacent to Zhaozuizi Hutong, and a small courtyard (Zhaozuizi Hutong No. 86 and 88 ) on the south side of the plot. Each had its own entrance entering from Zhaozuizi Hutong. This has been retained in the renewal design. Since the project site is located in the style and appearance control area of Beijing city central axis, it is subject to style and appearance protection control. The scale of the renovated building cannot exceed the scale of the original building, and the ancient building part must be built in the way of traditional Beijing courtyard building. This results in two groups of spaces with very different characters in the same plot: a relatively tall, nearly square modern flat-roofed space on the north side and a low, slope-roofed courtyard space on the south side. At the same time, the owner does not want to divide these two spaces into two independent parts with different functions, but to connect them as a whole for exhibitions, so how to connect them together becomes an important starting point for the design concept.
the main entrance of the building was designed on the facade of the square space on the north side, so that visitors can first enter the square space and then go south to the exhibition spaces of the courtyard, visiting in a clockwise direction, and finally walk out of the exit of the courtyard on the north side and return to Zhaozuizi Hutong. For this reason, glass bricks were proposed to build a continuous wall in the square space and the courtyard to connect the two groups of buildings together. Not only does it visually integrate the courtyard space on the west side of the plot with the indoor space on the east side, but more importantly, it changes the primary orientation of the courtyard from north-south to east-west, so that the relatively independent west wing house gains the best view to the yard. The outdoor space outside the glass bricks has become the external landscape of the gallery space: a set of borrowed scenery - the theater-like landscape of the living Hutong life. Therefore, the renewal design of this project considers the architecture, interior and landscape garden as a whole from the beginning.
The process of building renewal was completed with great care. The entire project plot is embedded in the surrounding neighborhood. Except for the north facade facing Zhaozuizi Hutong, which can be built independently, the exterior walls in other directions are almost all shared walls with neighbors, which cannot be demolished and need to be reinforced. Especially in the part of the courtyard on the south side, part of the roof is shared with neighbors, which brings more complicated problems to the renewal of the building. In the square space on the north side, due to the narrow hutong space, large vehicles and equipment cannot reach the site, so the 8-meter-long steel beam is divided into smaller lengths for manpower handling and construction.
Project Name: Path Yard:Zhiruan Digital Art Gallery
Location: Zhaozhuizi Hutong No.86,88,90, Beijing Tianqiao, China
Program: museum
Design Type: Public building (architecture, interior, landscape)
Building area: 175.3 M2
Site area: 255.6 M2
Design time: 2023
Construction: 2024
Client: Beijing Tianqiao hengrong investment Co., Ltd.
Design office: CU office
Chief architects: Che Fei, Zhang Xuefeng
Design team: Mu Gaojie, Jie yitong, Chen Haifeng, Huang Xiaoyang, Chen Yu
Mechanical Engineer: Huo Jinglong, Xiao Wenxing, Zhang Qiaohong
Structure engineering Consultant: Li Ping
Photography by : Jin Weiqi
- Architekten
- 超城建筑
- Jahr
- 2024
- Projektstatus
- Gebaut
- Bauherrschaft
- Beijing Tianqiao hengrong investment Co.




























