Garden House
Bad Wildungen, Deutschland
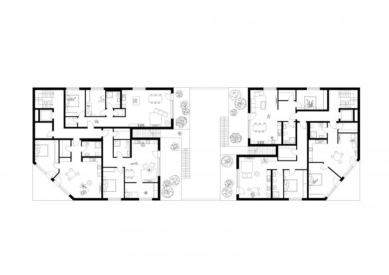
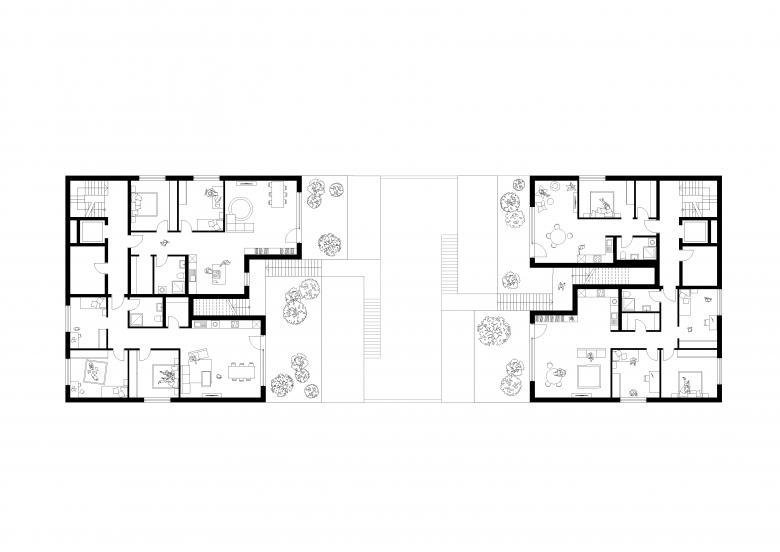
The Garden House in Bad Wildungen, located in the rural region of Waldeck-Frankenberg, creates a space for community and communication through opposing green terraces. These terraces can be individually designed and promote supportive coexistence. Outdoor stairs lead to the residential units, enhancing neighborly living.
The reddish facade and greenery reflect the historical context of the spa town. The centrally located courtyard with health-oriented functions on the ground floor serves as a meeting point and fosters connections among residents from various age and income groups. All communication elements allow for direct access to one another and significantly contribute to the well-being of the residents as well as to strengthening the sense of community.
- Architekten
- Christoph Hesse Architekten
- Jahr
- 2023
- Projektstatus
- Gebaut
Dazugehörige Projekte
Magazin
-
-
-
Periphery as Method: On Architecture’s 'Dispositional Intelligence'
Guiomar Martín | 15.05.2026













