Erweiterung Schulanlage Steig
Stokarbergstrasse 11, Schaffhausen, Schweiz
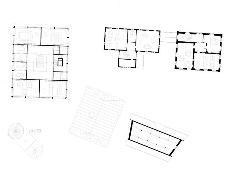
Mit der Setzung zweier Neubauten soll das historisch gewachsene Ensemble von Einzelbauten gestärkt werden. So wird im nördlichen Grundstücksteil eine dichte, aber zugleich nach Süden durchlässige Bebauung ausgebildet. Ein kompakter, dreigeschossiger Neubau mit Turnhalle und zwei darüberliegenden Klassengeschossen ergänzt das bestehende Schulareal und liegt mit der Stirnfassade an der Stokarbergstrasse, so dass der Pausenhof westwärts räumlich gefasst wird. Die alte Turnhalle erfährt einen Rückbau in ihren historischen Zustand, so dass im Herzen des nördlichen Arealteils genügend Platz entsteht für einen niedrigen Pavillon. Dieser wird, leicht abgedreht, als interner, öffentlicher Bau neuer Dreh- und Angelpunkt der Gesamtanlage, ohne aber das Raumkontinuum im Ganzen und insbesondere im Südteil des Areals zu unterbrechen. Der Schulneubau lässt das Volumen der unterirdischen Turnhalle um ein Vollgeschoss aus dem Boden kommen, so dass von den Aussenanlagen eine schöne Einsicht in die Halle sichergestellt ist. Zwei Einschnitte an den Ecken einer seitlich an die Turnhalle angelagerten Erschliessungsschicht markieren den Eingang. Über die zwei Eingänge erreicht man das Treppenhaus, das die Obergeschosse mit den Unterrichtsräumen erschliesst. Diese sind mit einer zenital belichteten Halle zusätzlich über eine interne Treppe erschlossen. Der archetypische Pavillon nimmt die Funktion der Tagesbetreuung auf. Die alte Turnhalle wird zum Mehrzwecksaal umgenutzt. Mit dem Rückbau in den ursprünglichen Zustand wird auch das Eingangsportal vom Pausenhof her reaktiviert.
- Architekten
- SOPPELSA ARCHITEKTEN
- Jahr
- 2025 - 2027
- Projektstatus
- Im Bau
- Bauherrschaft
- Hochbauamt Stadt Schaffhausen
Dazugehörige Projekte
Magazin
-
-
Periphery as Method: On Architecture’s 'Dispositional Intelligence'
Guiomar Martín | 15.05.2026 -

















