Bezahlbare Wohnungen für Bayern
Neu-Ulm, Deutschland
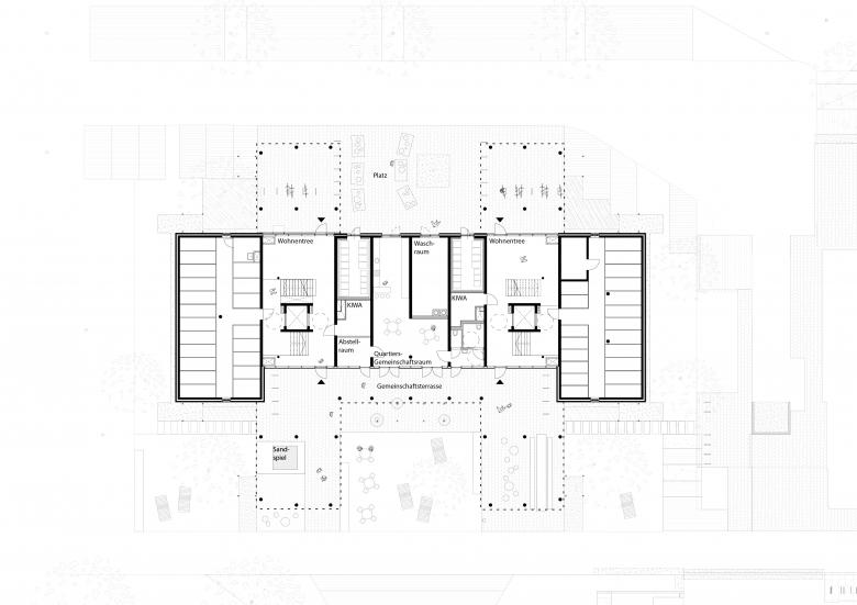
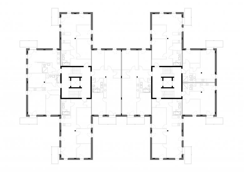
Noch Besser Aufgestellt – Der Wettbewerb wurde im Rahmen des experimentellen Modellvorhabens der Bayrischen Regierung "Effizient bauen - leistbar wohnen - Mehr bezahlbare Wohnungen für Bayern" ausgeschrieben. Auf dem Grundstück am Rand von Neu-Ulm sollen 70 Wohnungen in zwei Bauabschnitten errichtet werden, davon ca. jeweils die Hälfte gefördert und freifinanziert. Der Städtebau und die bereits realisierte erste Bauphase definieren die Rahmenbedingungen weitgehend, innerhalb des Baufelds öffnen sich jedoch Spielräume, die eine Neu-Interpretation des Umfelds erlauben.
- Architekten
- StudioVlayStreeruwitz ZT GmbH
- Jahr
- 2021
- Projektstatus
- Gebaut
Dazugehörige Projekte
Magazin
-
-
Periphery as Method: On Architecture’s 'Dispositional Intelligence'
Guiomar Martín | 15.05.2026 -
-

























