Wettbewerb Schulanlage Luchswiesen
Mit zwei Neubauten wird die Schulanlage Luchswiesen den neusten pädagogischen Ansprüchen und der rasanten Entwicklung des Quartiers gerecht. In Bewunderung der grosszügigen Grünachsen und Baumbestände der Steiner’schen Gartenstadt, verfolgt das Projekt die Weiterentwicklung des Ensembles, welches individuelle Bauten campusartig organisiert und gruppiert und reichhaltige Aussenräume und Verbindungen generiert. Die Volumen der Schule und der Sporthalle werden um den zentralen Pausenhof angeordnet, welcher weiterhin als Zentrum und Knotenpunkt fungiert.
Als zukunftsweisendes Projekt für die kommenden Generationen fokussiert die Konstruktion auf lokale, nachwachsende Materialien, eine Minimierung der grauen Energie und gutes Raumklima. Die Tragstruktur besteht aus einem Skeletbau in Holzbauweise und einer Holz-Betonverbunddecke. Die Trennung von Primär- und Sekundärtragstruktur ermöglicht auch zukünftig eine grosse Flexibilität. Die Fassade aus teils naturbelassenem und teils lasiertem Fichtenholz wird von den verspielten Windverbänden geprägt.
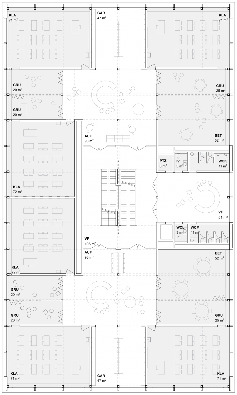
Die Schulräume sind mit ihren Längsseiten entlang der Fassaden angeordnet und zu optimalen Clustern strukturiert. Die Gruppen- und Betreuungsflächen bilden zusammen mit der Garderobe und der Mittelzone eine offene Lernlandschaft, welche vielfältig genutzt und bespielt werden kann.
Das Prinzip eines zentralen Pausenplatzes, um den die Bauten angeordnet sind, wird konsequent umgesetzt. Der bestehende westliche Trakt wird dabei abgebrochen und durch einen deutlich breiteren und höheren viergeschossigen Bau ersetzt, in dem die Schulnutzungen und die Musikschule untergebracht sind. Die bestehende Turnhalle und der Kindergarten im Norden werden durch einen zusammenhängenden Baukörper aus einem dreigeschossigen Riegel am Pausenplatz und einer zweigeschossigen, teilweise versenkten Sporthalle ersetzt. Dadurch, dass das Raumprogramm mit lediglich zwei Baukörpern erfüllt werden kann, wird die Qualität der bestehenden Anlage bezüglich Vernetzung erhalten und stellenweise sogar aufgewertet. Die Positionierung des Rasenspielfelds, die Auflösung der oberirdischen Parkplätze und der ungeschmälerte Erhalt des Baumbestands im Süden tragen wesentlich dazu bei. Die verschiedenen Klassencluster im Schulneubau sind logisch angeordnet und funktionell überzeugend. Grosszügige Bereiche im Kern des Baus sorgen für zusätzliche Begegnungszonen.
Die von der Denkmalpflege gelobte Einbindung in die Grünzüge der Gartenstadt wird mit grosszügigen und offenen Durchgängen gestärkt. Die Umrahmung des Ensembles mit Grossbäumen wird bewahrt und situativ vervollständigt. Der offene Blick aus den Klassenzimmern in die Baumkronen fördern ein konzentriertes Lernen.
- Any
- 2021
- Estat del projecte
- Disseny
- Landschaftsarchitekten
- Weber + Brönnimann Landschaftsarchitekten AG










