Wohnhaus Ibergstrasse, Winterthur Iberg

Iberg
Fotografia © Jürg Zimmermann

Umbau eines denkmalgeschützten Bauernhauses und Scheunenausbau für eine sechsköpfige Familie | Projektierung und Ausführung: 2013-14 | Bauherrschaft: Privat | Architektur und Bauleitung: Jonathan Roider Architekt ETH, Zürich | Fotos: Jürg Zimmermann, Zürich | ausgezeichnet mit dem Architekturpreis Region Winterthur AW16

Fotografia © Jürg Zimmermann
Fotografia © Jürg Zimmermann
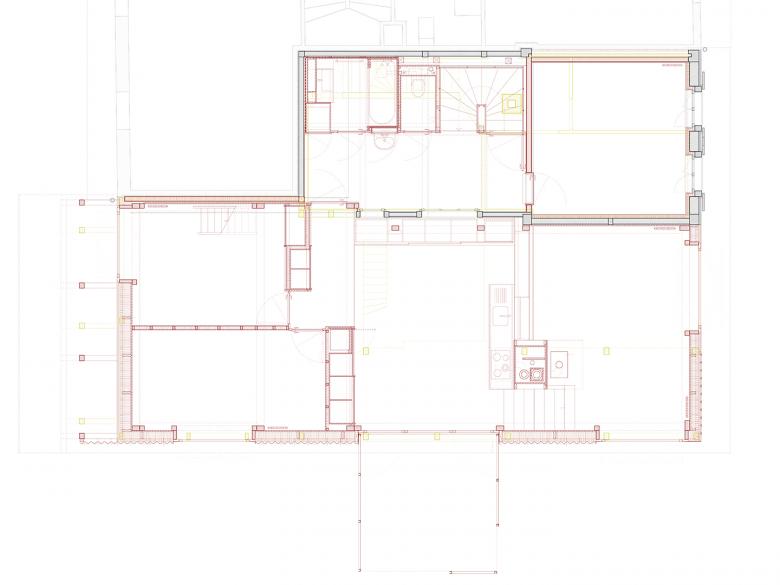
Dibuix © Jonathan Roider
Dibuix © Jonathan Roider
Visualització © Jonathan Roider
Fotografia © Jonathan Roider
Fotografia © Jonathan Roider
Fotografia © Jonathan Roider
Fotografia © Jürg Zimmermann
Any
2014
Estat del projecte
Construït

Altres projectes per Roider Giovanoli Architekten ETH BSA SIA 

Mehrfamilienhaus Bergbach, Erlenbach
Erlenbach, Switzerland
Umbau Sophienstrasse, Zürich
Zürich, Switzerland
Genossenschaftliches Wohnhaus Nordstrasse, Zürich
Zürich, Switzerland
Wohnhaus am Waldrand, Effretikon
Effretikon
Zentrumsplanung und Neubau Alterswohnungen, Brütten
Brütten, Switzerland