Sanierung und Neubau Badstrasse 28/30
Baden, Switzerland
Die Bestandesliegenschaften in der Badstrasse 28 und 30 befinden sich in der Zentrumszone Z4 sowie der Ensembleschutzzone 2 in der Altstadt von Baden. Die Parzelle Kat. Nr. 1606 liegt zwischen der Badstrasse und der flussseitigen Oelrainstrasse/ Hintergasse, die Bauten sind beidseits angebaut und Teil der geschlossenen Bebauung an der Fussgängerzone.
Die beiden Liegenschaften sind untereinander verbunden, die aktuelle Nutzung umfasst Verkaufs-, Atelier und Büroflächen. Hofseitig haben zahlreiche Anbauten neueren Datums die Hauptbauten aus dem 19. Jahrhundert ergänzt.
Die Bauherrschaft beabsichtigt mit einer Sanierung und Nachverdichtung die Liegenschaften mit neuen Nutzungen zu revitalisieren. Städtebaulich angemessen, werden die Gebäude umgebaut, aufgestockt und mit einem hofseitigen Annexbau ergänzt.
Auf der Basis diverser Gestaltungsvorschriften und der erhaltenswerten historischer Bausubstanz in Gebäude Badstrasse 30, wird mit den vorgesehenen Neubaumassnahmen die Kleinmassstäblichkeit der Zentrumszone gewahrt.
Das Gebäude Badstrasse 28 wird bis auf das bestehende Untergeschoss zurückgebaut und durch einen 3-geschossigen Neubau mit Attikageschoss ersetzt. Das Gebäude Badstrasse 30 bleibt in seiner Substanz bis einschliesslich 2. Obergeschoss erhalten, wird aufgestockt und passt sich als 5-geschossiger Baukörper harmonisch in das Gefüge der Badstrasse ein.
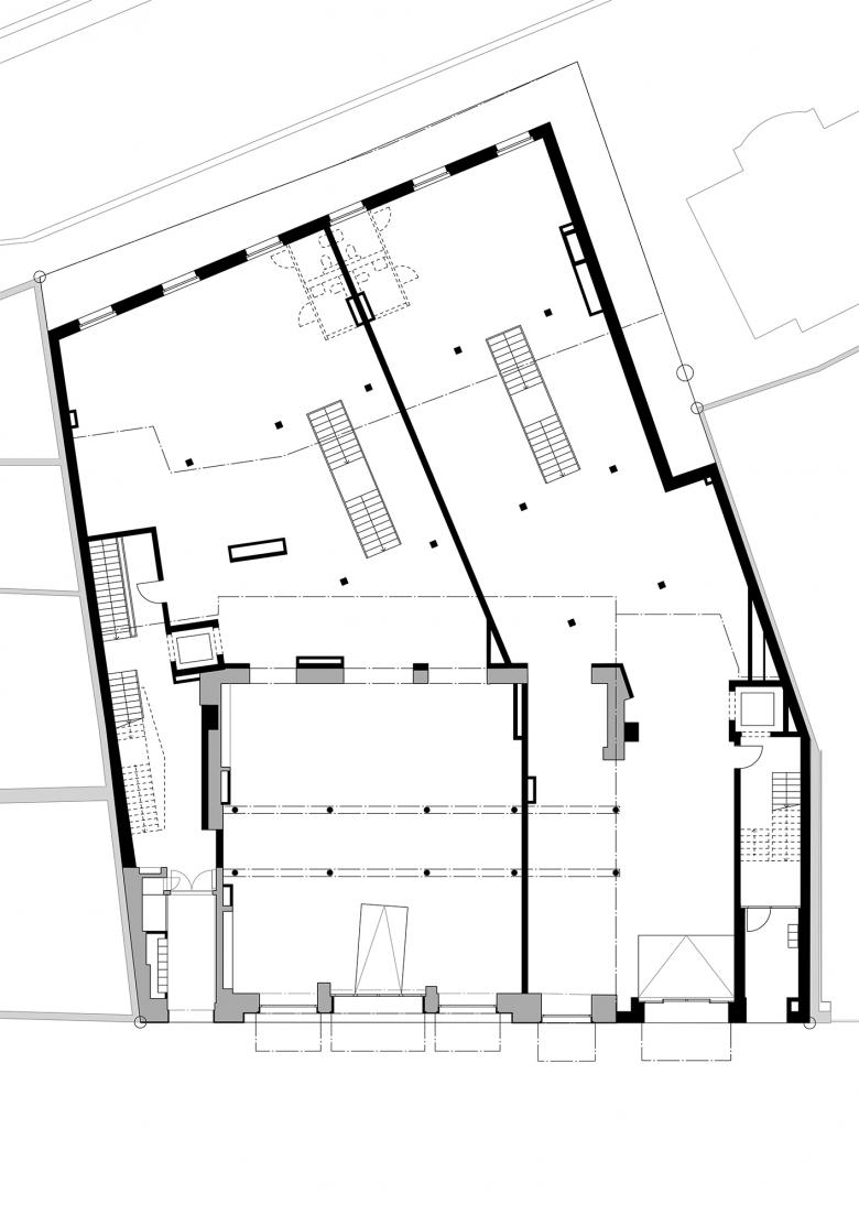
Hofseitig wird das Bestandesgebäude um eine Raumschicht erweitert, das Erdgeschoss und 1. Untergeschoss erstrecken sich mit Retailflächen variabler Unterteilungen bis zum Hinterweg.
Unterhalb der z.T. zweigeschossigen Verkaufsflächen befindet sich eine, auf Strassenniveau der Oelrainstrasse erschlossene private Tiefgarage mit 11 Einstellplätzen.
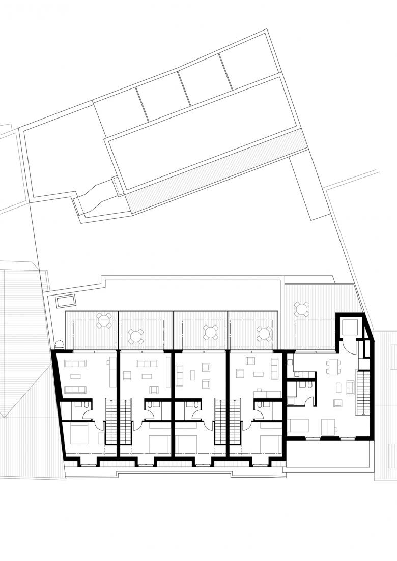
In Verlängerung der benachbarten Gebäudeflucht entlang der Oelrainstrasse wird ein Neubau mit fünf, hofseitig erschlossenen städtischen Reihenhäusern erstellt. Bestandesgebäude und der Annexbau formen einen zentralen, attraktiven und mit einem Baum bepflanzten Erschliessungshof auf dem Niveau oberhalb der Tiefgaragendecke.
Die herrschaftliche Innenausstattung mit Deckenstuckatur, Massivparkett und Brusttäfer im 1. und 2. Obergeschoss des Bestandesgebäude Badstrasse 30 bleibt weitestgehend erhalten.
Im 1. Obergeschoss ist eine zukünftige Büronutzungen vorgesehen, im 2. Obergeschoss erstreckt sich strassenseitig eine grosszüge Wohnung im Charme der Altbausubstanz. Hofseitig und im Bereich der Aufstockung sind Wohnungen unterschiedlicher Grösse anzutreffen. Vier Maisonettewohnungen nutzen die Westorientierung zur Badstrasse und die Terrassenausicht im Attika Richtung Schartenfels.
Der Neubau Badstrasse 28 ist oberhalb des Sockelgeschosses ein reiner Wohnungsbau, das Erdgeschoss ist geprägt von Schaufensterfronten und den Zugänge zu den Retailflächen. Seitlich an die Nachbarliegenschaften angrenzend, befinden sich jeweils unabhängige und behindertengerechte Erschliessungen von Badstrasse 28 bzw. 30.
Das Gebäude Badstrasse 30 tritt in der Fassadengliederung, Materialisierung und Farbgebung als sanierte und erhaltenswerte Bestandesliegenschaft mit einer zweigeschossigen, gestalterisch zurückhaltenden Aufstockung in Form eines Mansardendachs in Erscheinung.
Putzoberflächen, Fenstereinfassungen aus Naturstein, Kranzgesims und schmuckvolle Balkongeländer werden erhalten und unterstreichen die Qualität dieser bestehenden Fassadengestaltung.
In Abstimmung mit der Stadtbildkommission Baden erlangt der Neubau Badstrasse 28 volumentrisch und gestalterisch eine gewisse Eigenständigkeit. Unterschiedliche Geschosshöhen und ein zurückversetztes Attikageschoss auf einem dreigeschossigen Hauptbaukörper unterstreiche die kleinteiligen Volumetrien in der Badstrasse und vermitteln zur benachbarten Liegenschaft Badstrasse 26. Ausgebildet als Massivbau, tritt der Baukörper mit zeitgemässer Befensterung und Materialisierung selbstbewusst in Erscheinung.
Der Annexbau übernimmt die Flucht der Nachbarliegenschaft. Durch die gleiche Materialisierung wie der hofseitige Anbau am Badstrasse 30 wird eine gestalterische Einheit erwirkt.
Die Attikafassade der Reihenhäuser zum Innenhof wird geneigt als Dachschräge ausgebildet und erweitert den Innenhof visuell.
- Architects
- ERP Architekten AG_____ egli rohr partner
- Any
- 2019
- Estat del projecte
- En construcció
- Client
- Credit Suisse Asset Management
Projectes relacionats
Revista
-
Bâtiment de la semaine
The Three-Body Problem: Trapped in a Wave Sandwich
Eduard Kögel, Scenic Architecture Office | 13.04.2026 -
-














