Sanierung Alters- und Pflegeheim Hirzelheim
Regensberg, Switzerland
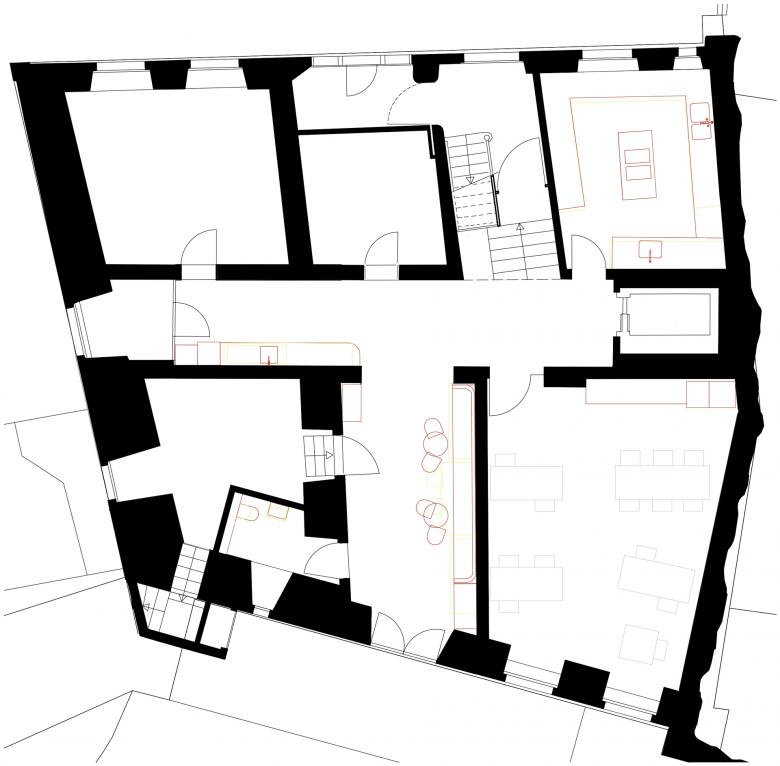
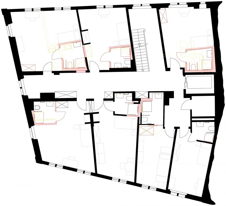
Das rund 450 Jahre alte Riegelhaus wurde im Rahmen einer umfassenden Sanierung behutsam modernisiert. Ziel des Projekts war es, die historischen Qualitäten des Gebäudes zu erhalten und gleichzeitig den heutigen Anforderungen an Komfort, Funktionalität und Barrierefreiheit gerecht zu werden. Zahlreiche kleinere Umbauten aus vergangenen Jahren wurden im Zuge der Arbeiten überprüft und in ein stimmiges Gesamtkonzept integriert. Im Zentrum der Sanierung standen neben den gemeinschaftlich genutzten Räumen wie dem Speisesaal, der Stube und dem Ankunftsbereich im Erdgeschoss, die Bewohnerzimmer. Diese wurden neu strukturiert, teilweise zusammengelegt und mit modernen, den Bedürfnissen eines Wohn- und Pflegeheims angepassten Nasszellen ausgestattet.
- Architects
- L3P Architekten ETH FH SIA AG
- Any
- 2025
- Estat del projecte
- Construït
- Client
- Stfung Hirzelheim
Projectes relacionats
Revista
-
-
Bâtiment de la semaine
The Three-Body Problem: Trapped in a Wave Sandwich
Eduard Kögel, Scenic Architecture Office | 13.04.2026 -

















