Mehrfamilienhaus Bergbach, Erlenbach
Erlenbach, Switzerland
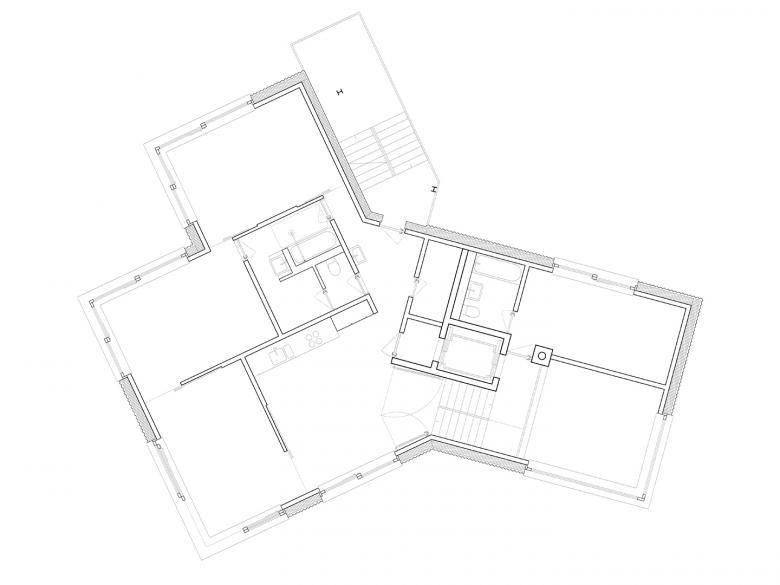
Wohnbau mit 4 Wohnungen und verschiedenen Gemeinschaftseinrichtungen | Wettbewerb: 2015 (1. Preis) | Projektierung: 2015-2024 | Bauherrschaft: Privat | Architektur: Roider Giovanoli Architekten in Arbeitsgemeinschaft mit Edelaar Mosayebi Inderbitzin Architekten AG ETH SIA BSA, Zürich
- Architects
- Roider Giovanoli Architekten ETH BSA SIA
- Any
- 2024
- Estat del projecte
- Construït
- Client
- Privat
Projectes relacionats
Revista
-
-
Bâtiment de la semaine
The Three-Body Problem: Trapped in a Wave Sandwich
Eduard Kögel, Scenic Architecture Office | 13.04.2026 -











