Umbau "Zum Hemmensberg"
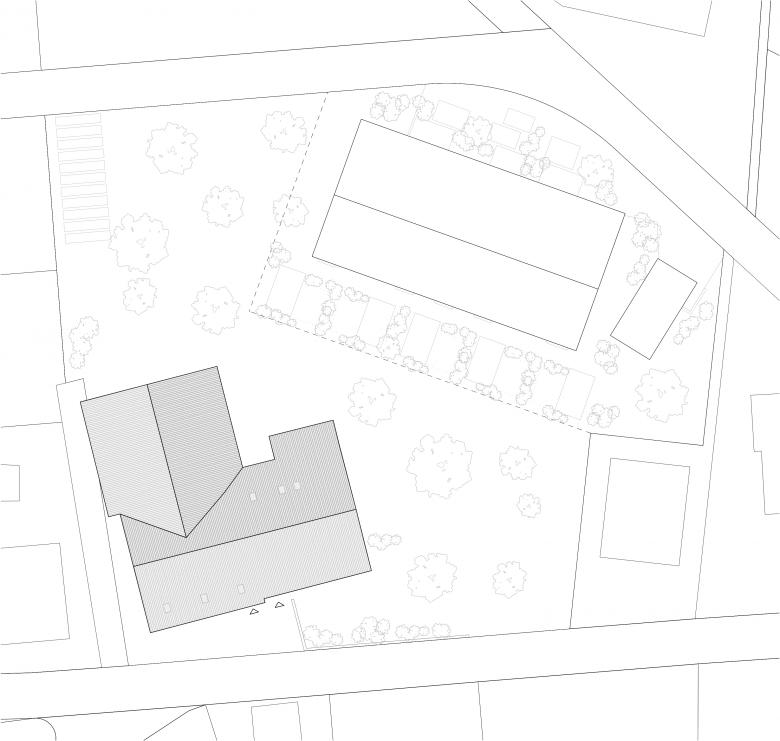
Städtebau
Das Bauernhaus von 1810 und rückwärtigem Scheunenanbau von 1912 ist auf kommunaler Ebene geschützt und prägt das Ortsbild des Dorfes massgebend.
Typologie
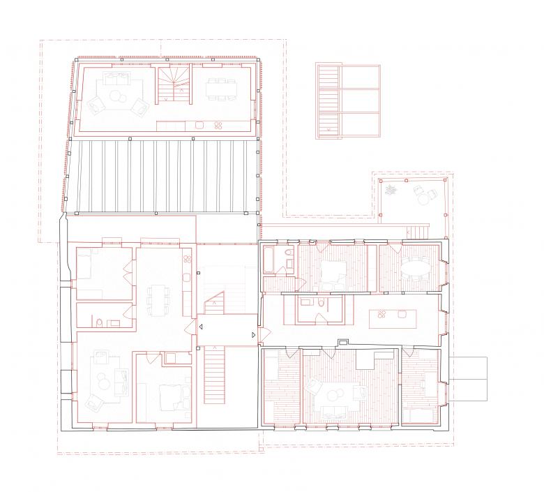
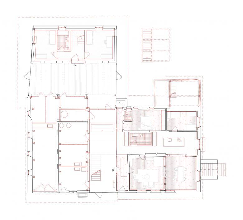
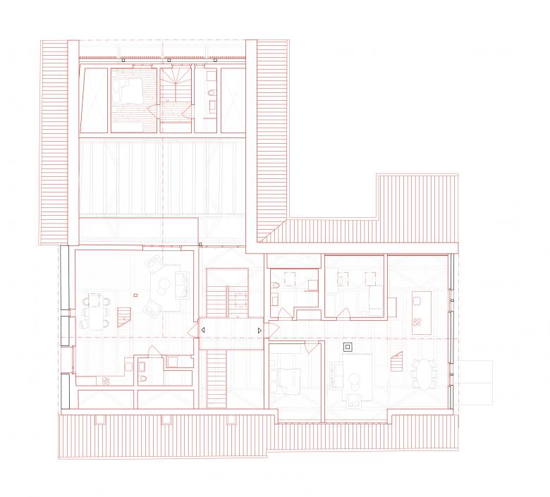
Die neuen Wohnungen im Ökonomieteil und Anbau wurden im Haus-in-Haus-Prinzip innerhalb der bestehenden Volumetrie integriert. Die beiden grosszügigen Tenne im vorderen und hinteren Gebäudeteil dienen als gemeinschaftliche Erschliessung, Begegnungszone und Stauraum.
Innenraum
Die Bestandswohnungen wurden unter denkmalpflegerischen Auflagen saniert. Kachelöfen, Täfer und originale Türen blieben erhalten. Helle Materialien, reduzierte Einbauten und eine sorgfältige Lichtführung bringen Grosszügigkeit in die tiefen Grundrisse mit niedrigen Decken. Die neuen Wohnungen zeichnen sich durch individuelle Grundrisslösungen aus – darunter eine kompakte Maisonette über drei Geschosse, Galerien unter dem Dach und ein innenliegender Balkon im rückwärtigen Tenn. Alle Einheiten sind schlicht ausgebaut mit Anhydritböden, Fichtenholz und offenen Raumbezügen.
Energie
Der Umbau erfolgte überwiegend in Holzbauweise mit minimalem Betoneinsatz. Dank neuer Fenster, Innendämmung mit Isofloc, Wärmepumpenheizung und -boiler ist das historische Bauernhaus ressourcenschonend im Betrieb.
Umgebung
Das Grundstück wurde mit einer artenreichen Blumenwiese, Obst- und Nussbäumen sowie heimischen Stauden naturnah gestaltet. Verschiedene Sitzplätze und Spielgeräte rund ums Haus werden gemeinschaftlich genutzt.
- Year
- 2023
- Bauleitung
- TriBau AG
- Bauingenieur
- Werner Locher
- Holzbauingenieur
- IHT Ingenieurbüro für Holz + Technik AG
- Bauphysik
- Mäder Bauphysik GmbH
- Brandschutz
- inexo
- Haustechnikplanung
- 3-Plan Haustechnik AG
- Elektroplanung
- Wick Engineering AG
- Fotografie (Aussen)
- Björn Siegrist
- Fotografie (Innen)
- Module Plus













