Stacked-Courtyard Housing
Rizhao, located on the sunny coast of the Yellow Sea in Shandong Province, is the site for an innovative new community project. This development draws inspiration from the region’s traditional stone cottage courtyards, reinterpreting them with a contemporary design through a new housing typology.
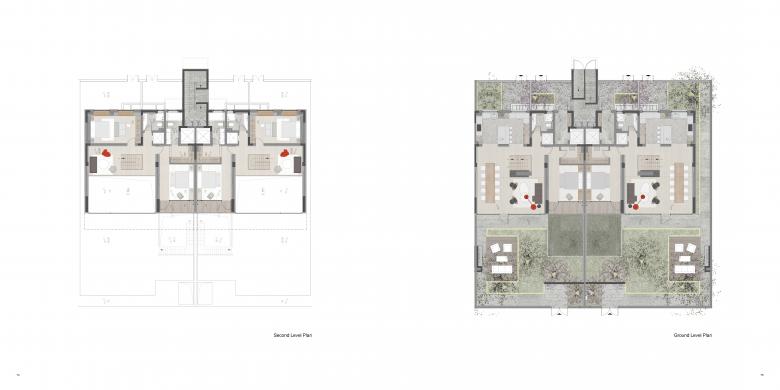
The housing plan consists of 151 blocks and 302 units, with a distinctive design concept that separates each pair of units. These units are functionally detached but visually and structurally stacked. The upper and lower units are divided both spatially and by floor, with the ground and second floors designated for the lower unit, and the third and fourth floors for the upper unit.
The lower unit includes two bedrooms, a living area, and a main courtyard spread across the ground and second floors. The basement and interlayer floors feature a bedroom, a tea room, a wine cellar, and a sunken courtyard. In the upper unit, three bedrooms and a living space are complemented by a floating courtyard on the third and fourth floors. The upper unit also incorporates a wine cellar in the basement level.
The overall massing of the two units is stacked vertically, connected by an outdoor staircase. Each unit is designed with separate circulation, including individual entries and two distinct elevators.
The transition between indoor spaces and the outdoor courtyards is three-dimensional, with a continuous stone façade that seamlessly blends interior and exterior. This design allows the landscape to naturally penetrate the space, creating a dynamic interaction between the built environment and the surrounding landscape. As a result, the boundaries between neighboring units become blurred, fostering a stronger sense of community and enhancing the atmosphere.
- Rok
- 2021
- Project Status
- Built



























