Erweiterung Mittelstation Gaislachkogl
Dorfstrasse 115, Sölden, Austria
Die Attraktionen am Gaislachkogl sorgten für einen spürbaren Besucheranstieg.
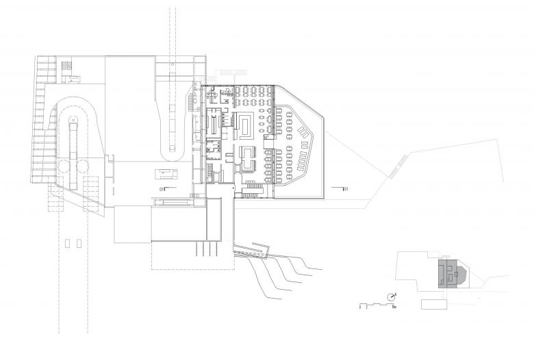
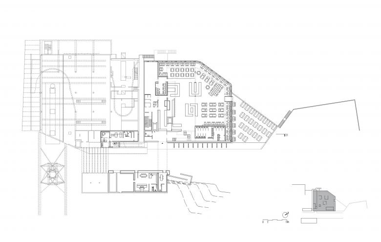
Gemeinsam mit den Bergbahnen Sölden wurde daher für die Mittelstation der Gaislachkoglbahn das Konzept eines Gourmet-Restaurants auf Seilbahnebene und eines SB-Restaurants auf Pistenebene mit vorgelagerten Terrassen entwickelt.
Wesentliche Ansprüche des Entwurfes waren:
• direkte Anbindung der Gastronomiebereiche an die Gaislachkoglbahn
• Entflechtung der Besucherströme
• Schaffung großzügiger Terrassenflächen
Der Neubau nimmt die Formensprache der 2010 errichteten Seilbahnstation auf, erweitert und vervollständigt das Ensemble. Aus Nachhaltigkeitsgründen wurde eine Massivholzbauweise gewählt, die Vorfertigung ermöglichte eine kurze Bauzeit. Der zeitgemäße Einsatz der Holzbaukonstruktion ermöglichte das Entstehen differenzierter Raumsequenzen und schuf eine einladende Stimmung im Innenraum.
Ein tiefgezogener Holzleimbinder parallel zur Fensterfront gliedert den Gastraum in einen von dunkeln Holztönen bestimmten Bereich entlang der Fassade und in einen von hellen unbehandelten Holztönen geprägten Innenbereich.
Schiebewände und flexible Möblierung ermöglichen räumliche Veränderungen für Veranstaltungen in unterschiedlichen Raumgrößen. Im free-flow-Bereich des SB-Restaurants sind die einzelnen „Marktstände“ unterschiedlichen Themen zugeordnet und durch zueinander kontrastierende Farben hervorgehoben. Großflächige Fassadenverglasungen zelebrieren das spektakuläre Bergpanorama der Umgebung.
- Architects
- obermoser + partner architekten zt gmbh
- Year
- 2021
- Project Status
- Built
- Client
- Ötztaler Gletscherbahn GmbH & CoKG
- Team
- Johann Obermoser, Christoph Neuner, Andreas Norz, Sandra Seeber
- Tragwerksplanung - Structural engineering
- ZSZ Ingenieure ZT GmbH, Innsbruck
- Haustechnik - Building services
- Alpsolar Klimadesign OG, Innsbruck
- Elektroplanung - Electrical design
- Falkner & Riml, Sölden



















