乡村振兴咖旅庄园研学中心
China
Donghui Town is located in Lancang Lahu Autonomous County, Pu'er City, Yunnan Province. In order to develop tourism and characteristic industries, Donghui Town has carried out overall environmental, industrial, and layout transformations of its subordinate villages. After the transformation, the village was renamed "Gaixin Village," achieving a significant change in the village's appearance and industrial development. Gaixin Village is surrounded by mountains with a favorable geographical climate. Local coffee is the main cash crop. As an east-west cooperation poverty alleviation project in which Huangpu District of Shanghai pairs up with Lancang County, it is planned to set up a coffee processing factory and establish a supporting coffee tourism manor on this basis.
The Coffee Research and Learning Center, serving as a gateway building that integrates the primary, secondary, and tertiary sectors of the coffee industry, is located at the main entrance where the village's residential area meets the factory. The project aims to create a place for people to rest and sightsee, popularize coffee - related knowledge, offer coffee experiences, and conduct coffee culture exchanges. Meanwhile, it provides coffee - industry - related training (such as picking, roasting, and brewing) for local ethnic minority villagers and outsiders interested in coffee. To some extent, it also supplements the village's public supporting infrastructure (community library, restrooms, etc.).
The Rural Notes is an educational service platform focused on rural scenes, and the inception of the Study Center project is also rooted in the government's introduction of Rural Notes to re-plan and reposition this building within the factory area. The first visit to the site was on a rainy day during the National Day holiday. We reached the village through winding mountain roads. The rudimentary steel frame structure was planned during the initial phase of factory construction, and it was clearly visible from the roadside. It sits at the center of the entire village, surrounded by primitive village houses. The task of the design was to redesign this framework to meet new functional requirements.
Since Yunnan is located in an earthquake-prone zone, with a seismic resistance rating of level 9, the existing steel structure can only be strengthened rather than reduced. This imposes certain limitations on the building's spatial layout and design. After several discussions with structural engineering professionals, we have made the following modifications to the floor plan by carefully considering both structural and aesthetic factors:
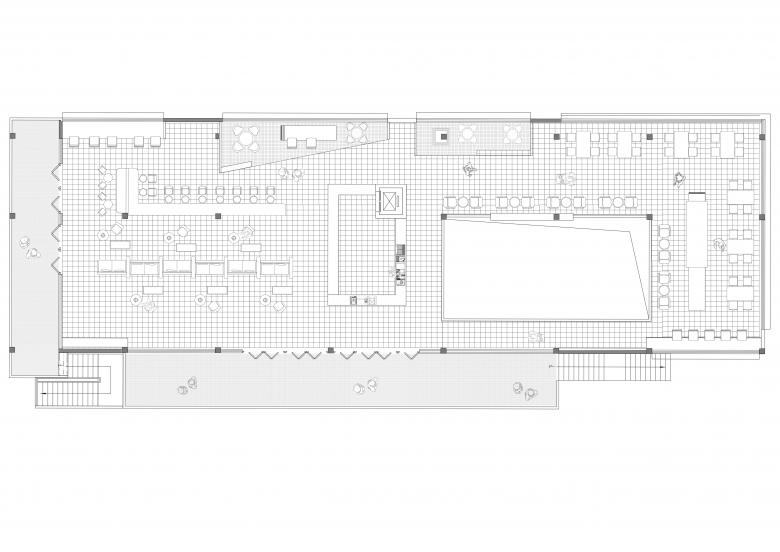
Before designing, we deeply contemplated the site. The journey from coffee bean cultivation to the final roasted product is a lengthy process, and a good cup of coffee should evoke a sense of enchantment. Therefore, we have constructed an immersive space system around the entire life cycle of the coffee industry. On the first floor, a semi - open composite space is used to integrate the building with nature, which can flexibly accommodate functions such as theme exhibitions and creative markets.Part of it would be used as an indoor space for coffee study activities. The atrium's double-height space would establish a functional connection with the second floor and provide a unique spatial experience.
On the second floor, an industrial dialogue is created through a double landscape terrace. One facing the factory area and plantation, and the other facing the main road into the village. These terraces are accessible via outdoor stairs on both sides. The indoor space is designed with flexible partitions and divided into various experience spaces by different forms of tables and chairs.
On the second floor of the building, it serves as a resting place for visitors after a tour of the entire site. We can experience the historical background of this village from multiple perspectives. Order a cup of coffee and savor it slowly. While enjoying the coffee, on one side, you can overlook the entire factory area, and on the other side, you can see every corner of the village.
The main facade, visible from the main road, serves as a display surface. We aim for it to harmonize with the new factory building while also resonating with the existing architecture of the village. To achieve this, we use red bricks in certain areas and silver-white colors for all metallic surfaces. Vertical traffic flow lines are adorned with a mirrored strip, reflecting the village buildings in front of the structure, thus, while resolving the opposition between the old and the new, initiating a dialogue between the new building and its surroundings.
The study space on the ground floor is surrounded by full-length glass panels, which can be opened or closed based on the functional requirements of activities. When opened, the entire study space can extend outdoors, providing a seamless connection between the indoor and outdoor areas.And to a certain extent, leaving some flexibility can meet the needs of different forms of activities (such as markets and performances).
The terrace on the second-floor main facade offers panoramic views of the village. Its vertical alignment frames the silhouette of historical architecture, while horizontal sightlines curate vignettes of daily life. It allows visitors to immerse themselves in the cultural and lifestyle ambiance of the village.
On the second floor, the facade facing the factory area and the planting area features large - scale glass, creating a dialogue window with the humanistic texture of the ancient village through a panoramic view. In the interior space, multi - dimensional geometric blocks are innovatively incorporated to create an immersive experience route that combines visual and tactile sensations. Tourists can not only enjoy the original scenery and the charm of the village through the floor - to - ceiling windows, but also witness the life journey of coffee beans from fruit to cup as they move around, feeling the perfect symphony of nature's gifts and human wisdom.
By incorporating skylights, we've created a cozy seating area with sofas and booths. This not only enriches the diverse experience spaces but also allows visitors to relax and unwind in comfort and leisure.
The Gaixin Village Coffee Research and Learning Center is an innovative practice of integrating industry and space in rural revitalization. Through the organic interaction between the architectural space and the production scenario, it builds a physical platform for urban - rural cultural exchange. With panoramic glass interfaces, flexible partitions and interactive experience routes, it transforms the coffee production process into an immersive educational scenario. In the design, through the material dialogue between red bricks and mirrors and the visual penetration between production display and village landscape, while preserving rural memories, it constructs a platform for urban - rural cultural exchange, providing a replicable space transformation model for rural industrial upgrading and bringing vitality to the once - neglected ancient village.
- Architects
- Parallect Design
- År
- 2024
- Projektstatus
- Built
- Kunde
- Gaixin Village, Donghui Town, Lancang County; Beyond The City,,
- Team
- Parallect Design:Li Zongji, Wang Yunwei, Tian Xinyin Soochow University: Yang Nan, Xiao Xiangdong,,
Relaterede projekter
Magasin
-
-
Ugens Bygning
The Three-Body Problem: Trapped in a Wave Sandwich
Eduard Kögel, Scenic Architecture Office | 13.04.2026 -





































