Shijingshan Cultural Center

Beijing, China
Drawing © Studio Zhu-Pei

The Shijingshan district is located between Beijing city centre and the Western Hills, beyond the fifth ring road. The surrounding urban area is bounded to the northwest by mountains, which during Imperial China contributed to the good FengShui situation of the capital. The vast plane between the mountains and the historic city has long since been filled by the massive urban growth of recent years.

In Zhu Pei’s interpretation, this human activity is like a thin layer over the silhouette of the mountains. With reference to the silhouette, he cuts an open balcony into the opaque but visually solid spatial volume of the Cultural Centre. This runs horizontally through the building on the second and third levels, and at its centre widens out above the staircase as an organizing funnel to ventilate and illuminate into the core of the building. The partly organic-shaped open areas expand to form a continuous balcony around the auditorium volume.

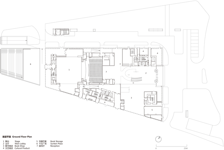
The building site has the shape of an unequal triangle tapering off to the southwest-an unusual situation in the grid city of Beijing. Cinemas and a car park are located underground, while on the ground floor are the lobby, the auditorium with stage, commercial areas for shops and at the south-western tip, a sunken plaza opening via a staircase to the street level. On the levels above the character-forming horizontal incision are a sports hall, a restaurant, an art school and recording studios. The glass facade is shaded with vertical aluminuium louvers mounted at irregular spacings. The Cultural Centre unites these various functions as one 'urban' block, which due to its form and materiality stands out in the neighbourhood.

© Studio Zhu-Pei
East elevation
Drawing © Studio Zhu-Pei
West elevation
Drawing © Studio Zhu-Pei
First floor plan
Drawing © Studio Zhu-Pei
Third floor plan
Drawing © Studio Zhu-Pei
Section 1-1
Drawing © Studio Zhu-Pei
Section 2-2
Drawing © Studio Zhu-Pei
Study model
Photo © Studio Zhu-Pei
Study model
Photo © Studio Zhu-Pei
Visualization © Studio Zhu-Pei
Visualization © Studio Zhu-Pei
Visualization © Studio Zhu-Pei
Architects
Studio Zhu-Pei
Year
2015
Project Status
Under Construction
Client
北京市石景山区文化委员会
Team
何帆,韩默,Edwin,由昌臣,吴志刚,刘伶,Shuhei Nakamura,柯军
Structural Consultant
Professor Fu Xueyi, Master of National Engineering Survey and Design
MEP Consultant
BIAD JAMA CO., LTD.

Related Projects 

  • Moos
    playze
  • Reiters Reserve Premium Suiten
    BEHF Architects
  • Erweiterung und Instandsetzung Hallenbad Altstetten
    MIYO Visualisierung
  • Neubau von fünf Einfamilienhäusern
    Bäumlin+John AG
  • The Forge in der 105 Sumner Street in London
    Kiefer Klimatechnik GmbH

Magazine 

Other Projects by Studio Zhu-Pei 

Yang Liping Performing Arts Center
Dali, Yunnan, China
Ningbo Jiangdong Catholic Church
Ningbo, China
Zibo OCT Art Center
Zibo, China
"Cube" Art Museum
Beijing, China
Yi Garden I,12th Venice Biennale
Venice, Italy