Museum Historische Oberamteistraße, Neubau
Oberamteistraße 34, Reutlingen, Germany
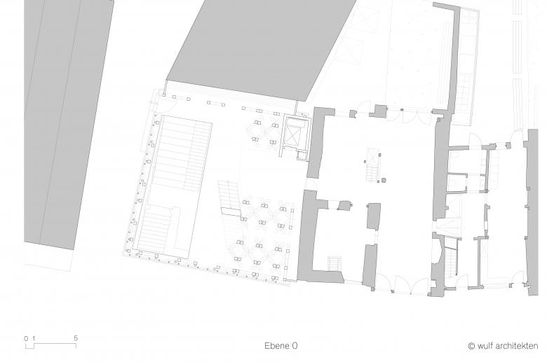
Die historische Häuserzeile Oberamteistraße 28 – 32 und der Keller des 1972 abgebrochenen »Steinernen Hauses« auf dem Grundstück Nr. 34 zählen zu den ältesten Fachwerkhäuserzeilen Süddeutschlands und spiegeln die Bau- und Wohnkultur seit dem Mittelalter authentisch wider. Die denkmalgerechte Sanierung umfasst die Instandsetzung der Altbauten sowie einen Neubau an der Stelle des nicht mehr vorhandenen Eckhauses »Steinernes Haus«. Das Ensemble dient als Museum, wobei die Altbauten selbst das Exponat sind. Der 2025 fertiggestellte Neubau ermöglicht die barrierefreie Erschließung der Altbauten und bietet Raum für verschiedene Veranstaltungsformate, Begegnungen, Kreativität und Austausch.
Die innere Struktur besteht aus einem mit heimischem Weißtannenholz gefertigten Fachwerk, das die angrenzende, umsturzgefährdete Häuserzeile abstützt und dabei das verlorene Volumen des historischen Hauses nachbildet. Die Dach- und Fassadenflächen sind mit einer homogenen Schicht aus gussgläsernen Biberschwanzziegeln bekleidet. Je nach Lichteinfall, Reflexion und innerer Beleuchtung ist das dahinter liegende hölzerne Fachwerk mehr oder weniger sichtbar, das Gebäude wirkt durchscheinend oder glitzernd, wie eine Chimäre.
Der Neubau zeichnet sich durch ein geometrisch-hochkomplexes Tragwerk aus. Die Tragstruktur wurde so entwickelt, dass architektonische Anforderungen und konstruktive Logik präzise ineinandergreifen und folgt einer klaren funktionalen Gliederung: Eine dreischichtige, graduell abnehmende Unterkonstruktion aus diagonal und horizontal überlagernden Holzstreben trägt die gläsernen Biberschwanzziegeln als Witterungsschutz. Dabei kommt der Neubau ohne thermische Dämmung und Klimatisierung aus und dient auch als Schutzbau für den historischen Keller. Die natürliche Belüftung und Entrauchung des Gebäudes erfolgt ausschließlich über die offenen Fugen der gesamten Gebäudehülle, ohne mechanische Unterstützung.
- Architects
- wulf architekten
- Year
- 2025
- Project Status
- Built
- Team
- Stephan Burger (PL), Nicole Cao, Antonia Dürig, Hannah Esch, Junjie Long, Michael Mayer, Kübra Mercan, Damla Mirik, Nova Michalski, Simon Muller, Weiyan Wang, Philipp Stute (stellv. PL / Bauleitung)
- Tragwerksplanung
- str.ucture
- Denkmalgerechte Instandsetzung
- strebewerk, Architekten GmbH
- Landschaftsarchitektur
- Bäuerle Landschaftsarchitekten
- Projektsteuerung
- Hitzler Ingenieure
- HLS-PLanung
- IB Wienand
- ELT-Planung
- IB Köhler
- Aufzugsplanung
- planR
- Brandschutz
- Brandschutz Consulting
- Bauphysik
- Kurz und Fischer
- Modellbau
- Béla Berec
- Fotos
- Brigida González









