Grellingerpark
Reinach
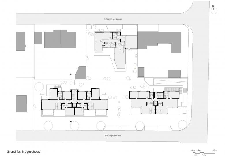
Die Wohnüberbauung Grellingerpark Reinach umfasst drei Mehrfamilienhäuser, welche durch eine Autoeinstellhalle verbunden sind. Die komplexe Parzellenform gliedert die Gebäudekörper in zwei Zeilen. Die ökologisch hochwertige Umgebung schafft nicht nur einen hohen Mehrwert für die Bewohner, sondern bindet die drei Mehrfamilienhäuser zu einem Konglomerat zusammen.
Die drei Mehrfamilienhäuser wurden so in die Parzelle integriert, dass trotz verdichteter Situation jede Wohnung von einer optimalen Belichtung und Privatsphäre profitieren kann. Dazu wurden die zwei MFH an der Grellingerstrasse als «Bruder und Schwester» konzipiert und nach Süden orientiert- das MFH an der Arlesheimerstrasse hingegen als Solitär, welches nach Süd-West ausgerichtet ist.
Die Wohnüberbauung verfügt über einen ausgewogenen Wohnungsmix. Die Wohnungen verfügen über einen hochwertigen Innenausbau, helle Wohnräume mit offener Küche und Kochinsel, geräumige Zimmer, grosszügige und gedeckte Aussenräume. Jedes Stockwerk ist bequem mit Lift erreichbar und somit rollstuhlgängig. Die Wohnüberbauung hat eine Photovoltaik-Anlage und wird mit einer Erdsondenheizung gewärmt.







