Haus K
Nofels ist eine Fraktion der Stadt Feldkirch, ein räumlich in Relation zum Kern selbstständiger Stadtteil mit dörflichem Zuschnitt. Das Gelände ist eben, den nahen Horizont bilden Waldstücke und die Feldkircher Stadtberge, den fernen Horizont das vorzügliche Bergpanorama beiderseits des Rheintals.
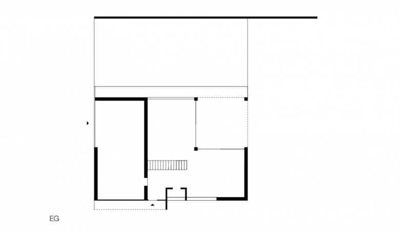
Das parallelogrammförmige Grundstück König befindet sich in einem noch lückenhaft, offen bebauten Siedlungsbereichs; mit einem Raster mit 5,5 Meter Weite wurde das Haus gegliedert und positioniert. Ein rechteckiger Schwimmteich und ein trapezoider Vorplatz binden das Haus an die Grundstücksgrenzen. Die Garage liegt straßenseitig; das offen stehende Garagentor dient als Sichtschutz Richtung Schwimmteich. Das Haus ist nicht unterkellert, verfügt aber neben der Garage über einen großen Abstellraum samt haustechnischer Ausstattung. Der Eingang liegt an der Nordfassade, wettergeschützt durch eine winkelförmige Auskragung. Küche und Wohnen sind im winkelförmigen Erdgeschoss vereint, das über einen Luftraum mit der oberen Ebene zusammengefaßt ist.
Die Treppe und die Brücke zwischen Kinder- und Elternbereich sind in Stahl ausgeführt. Die Fassaden und die Wand zwischen Wohnraum und Garage sind in Sichtbeton ausgeführt, mit innenliegender Dämmung und Gipskarton-Vorsatzschale. Die Fenster sind in Aluminium ausgeführt. Die Böden im Erdgeschoß als geschliffener Estrich, im Obergeschoß als geölter Parkett. Textile Außenvorhänge kontrastieren die außerordentliche Härte des Baukörpers. Für den Großteils von baumeisterlicher Durchschnittsware bestimmten Feldkircher Siedlungsrand eine scharfe architektonische Ansage.
- Year
- 2001
- Project Status
- Built
- Client
- Peter König








