Neue Volksschule Brünnen
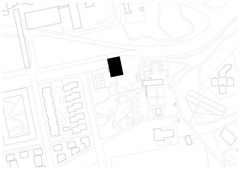
Das Schulhaus Brünnen steht östlich des Ansermet- platzes direkt an der Murtenstrasse und kennzeichnet in seiner vorstädtischen Position den Zugang zum neuen Quartier Brünnen. Die davon zurückgesetzte und nur ein Geschoss aus dem Terrain herausragende Doppelturn- halle gewährleistet die räumliche Verbindung zwischen dem Brünnenpark und dem gegenüberliegenden Vor- stadtquartier Gäbelbach und generiert zusammen mit dem Volumen des Schulhauses einen längsgerichteten Schulhof als Auftakt zur neuen Schulanlage.
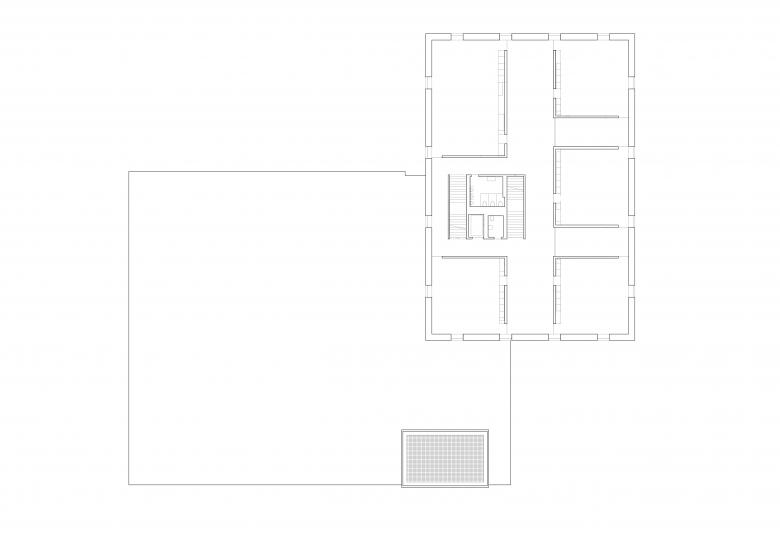
Die neue Schulanlage besteht aus dem Ensemble des Schulhauses für die Basis- und Primarstufe und der Dop- pelturnhalle mit Nebenräumen. Die beiden Nutzungsein- heiten sind über ein Treppenhaus miteinander verbunden, funktionieren betrieblich aber auch autonom. Der Haupt- eingang der Schule führt über einen gedeckten Aussen- bereich in ein Eingangsfoyer. Hier befindet sich auch der Zugang zur Turnhalle und zu den Garderoben. Im Erdge- schoss und im ersten Obergeschoss des Neubaus befin- den sich je zwei Basisstufen mit einem direkten Zugang zum geschützten Aussenraum. Im zweiten und dritten Obergeschoss befinden sich je vier Klassenzimmer mit Gruppenräumen für die Primarstufe sowie Werkräume. Die Räume für die Lehrkräfte befinden sich im vierten Obergeschoss.
- Year
- 2016
- Project Status
- Built
- Client
- Hochbau Stadt Bern
- Team
- arge Neue Volksschule Brünnen, Ernst Gerber Architekten + Planer AG, werkgruppe agw Bern, urech architekten ag köniz






